CAD频道
CAD图库
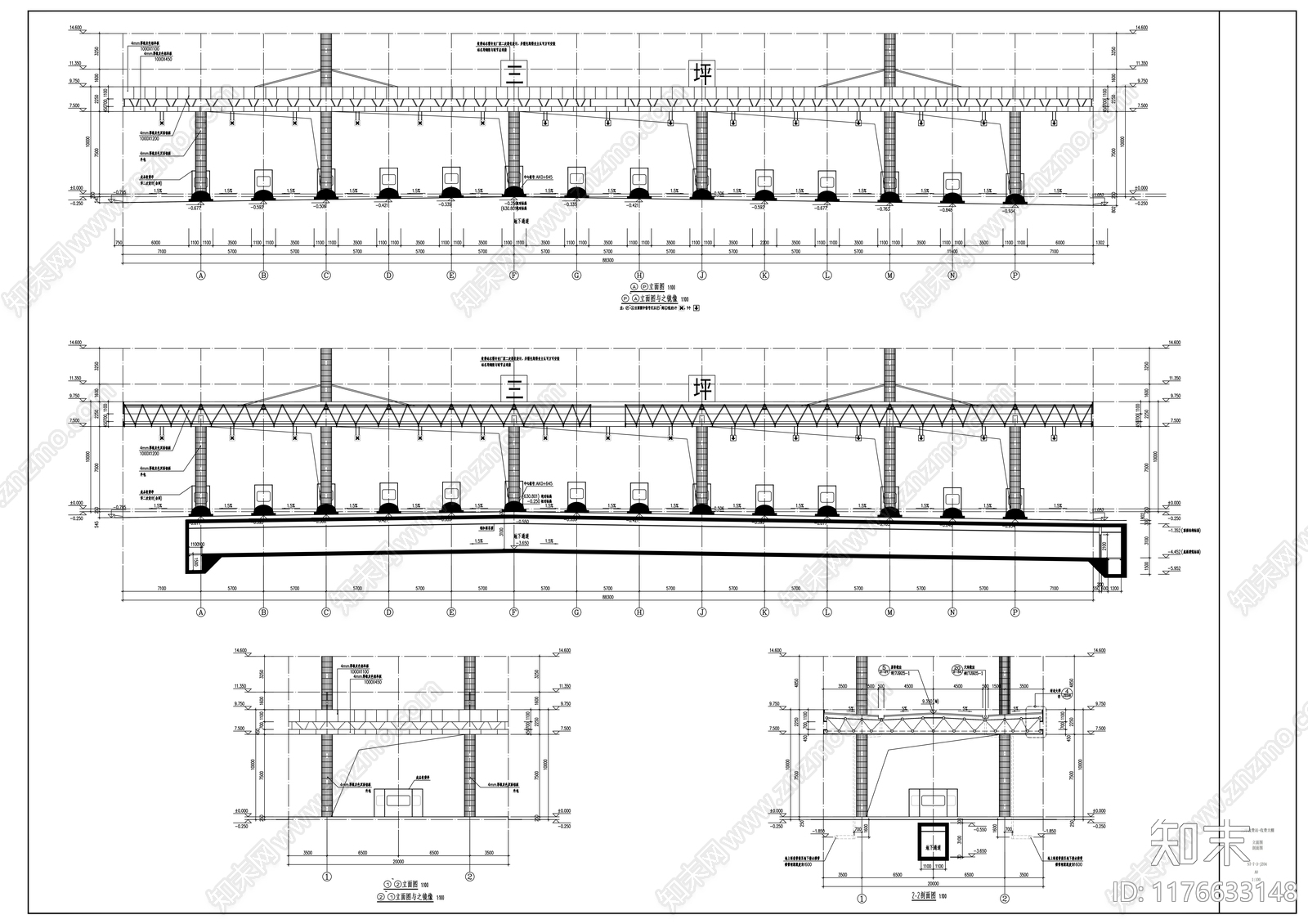
钢结构 收费站大棚 施工图 钢结构
1/
7
Previous
Next
钢结构CAD下载
ID: 1176633148
复制
上传作者
常威打来福
上传时间
2024-10-25
文件大小
4.16M
设计风格:
--
CAD版本:
天正CAD6.0
包含文件:
CAD
授权
独家
立即下载
收藏
分享
举报
相关推荐
综合
景观小品
大棚
亭子
廊架
景墙
综合景观小品
雨棚
围墙
挡土墙
入口