CAD频道
CAD图库
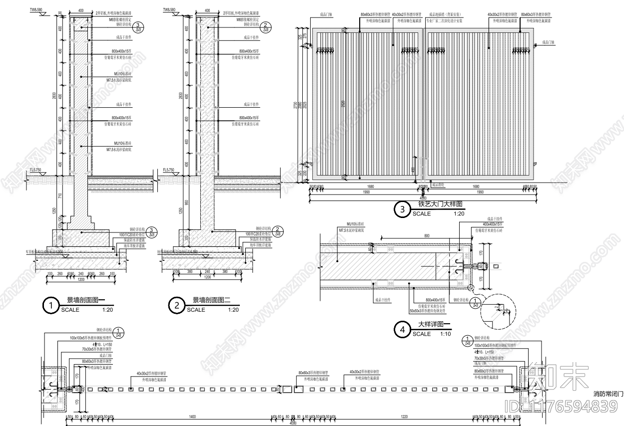
现代门楼 常闭消防 铁艺 院 施工图
1/
2
Previous
Next
现代门楼CAD下载
ID: 1176594839
复制
上传作者
盗图必究(详图)
上传时间
2024-10-24
文件大小
0.16M
设计风格:
--
CAD版本:
CAD2004
包含文件:
CAD
授权
独家
立即下载
收藏
分享
举报
相关推荐
综合
景观小品
门楼
亭子
廊架
景墙
综合景观小品
雨棚
围墙
挡土墙
入口