CAD频道
CAD图库
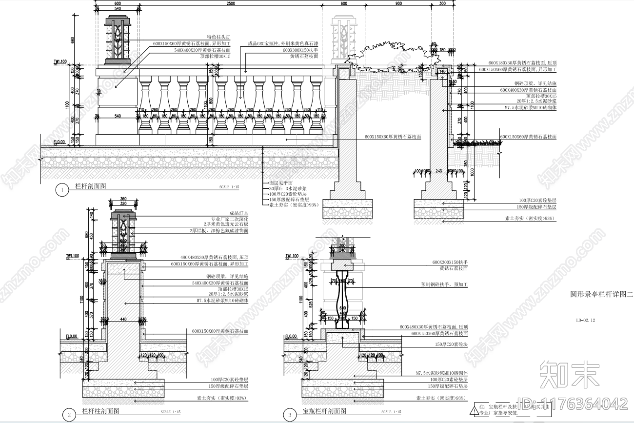
现代栏杆 成品GRC宝瓶柱 施工图
1/
2
Previous
Next
现代栏杆CAD下载
ID: 1176364042
复制
上传作者
盗图必究(详图)
上传时间
2024-10-22
文件大小
0.38M
设计风格:
--
CAD版本:
CAD2004
包含文件:
CAD
授权
独家
立即下载
收藏
分享
举报
相关推荐
综合
景观小品
栏杆
亭子
廊架
景墙
综合景观小品
雨棚
围墙
挡土墙
入口