CAD频道
CAD图库
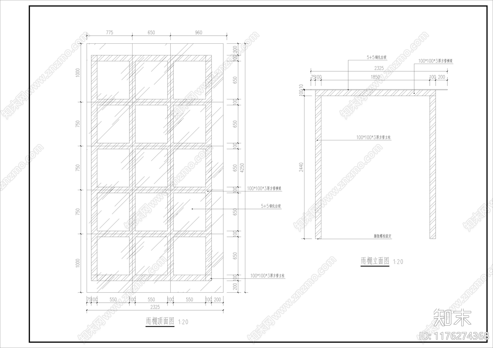
现代庭院 玻璃 简易 施工图
1/
2
Previous
Next
现代庭院CAD下载
ID: 1176274368
复制
上传作者
бю
上传时间
2024-10-21
文件大小
0.41M
设计风格:
--
CAD版本:
天正CAD6.0
包含文件:
CAD
授权
独家
立即下载
收藏
分享
举报
相关推荐
综合
居住区景观
庭院
屋顶花园
示范区景观
售楼处景观
小区主入口
小区中心广场
宅间绿地
社区儿童区
社区健身区