CAD频道
CAD图库
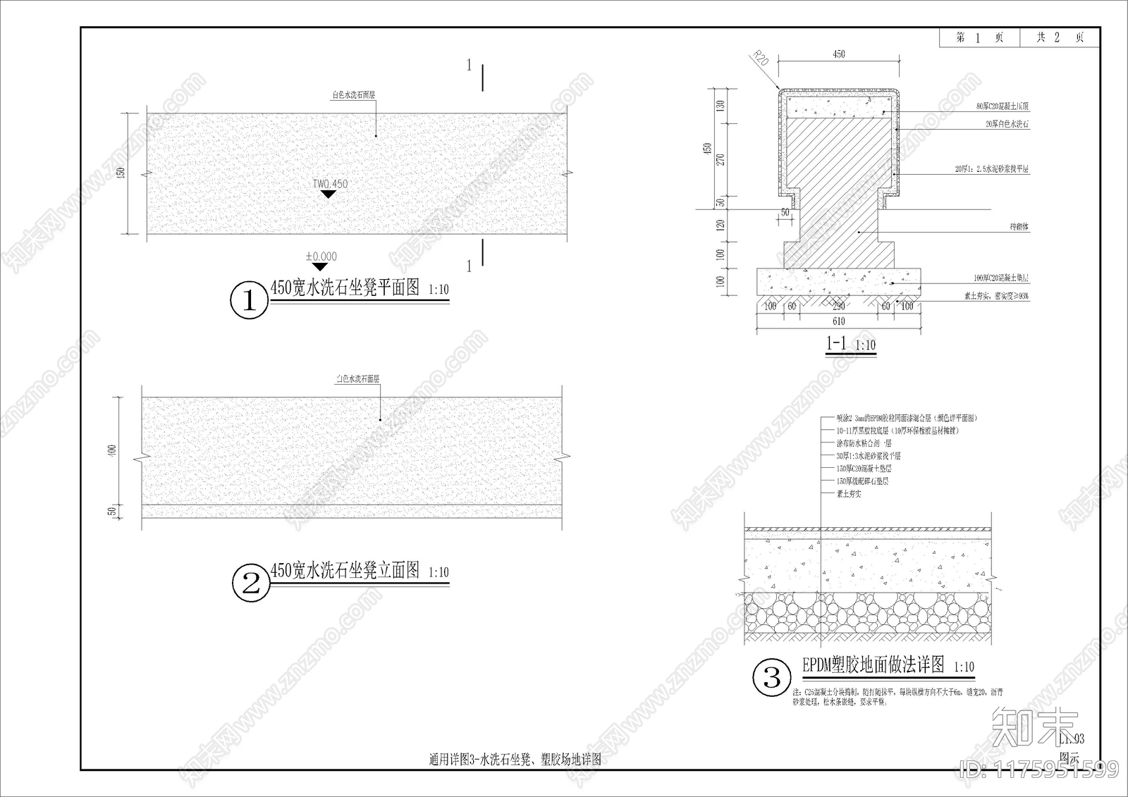
景观节点 水洗石大样图 施工图
1/
2
Previous
Next
景观节点CAD下载
ID: 1175951599
复制
上传作者
明日清晨
上传时间
2024-10-18
文件大小
0.87M
设计风格:
--
CAD版本:
CAD2007
包含文件:
CAD
授权
独家
立即下载
收藏
分享
举报
相关推荐
综合
节点详图
景观节点
吊顶节点
墙面节点
地面节点
门节点
其他节点详图
建筑工程节点
景观小品
楼梯节点