CAD频道
CAD图库
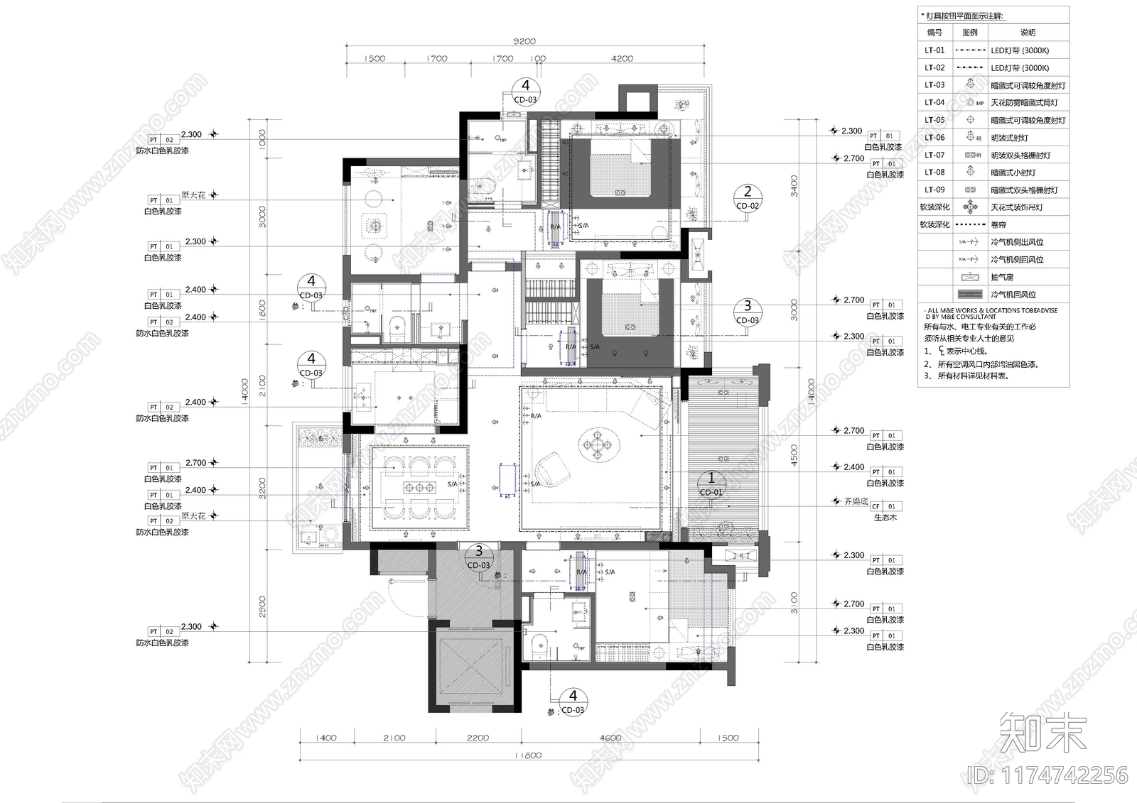
平层 平面设计布置图 四室两厅 两室一厅 平层吊顶图 施工图 平层
1/
3
Previous
Next
平层CAD下载
ID: 1174742256
复制
上传作者
画图人生(互粉必回)
上传时间
2024-10-08
文件大小
1.17M
设计风格:
--
CAD版本:
CAD2014
包含文件:
CAD
授权
独家
立即下载
收藏
分享
举报
相关推荐
综合
平层
大平层
小户型平层
超大型平层