CAD频道
CAD图库
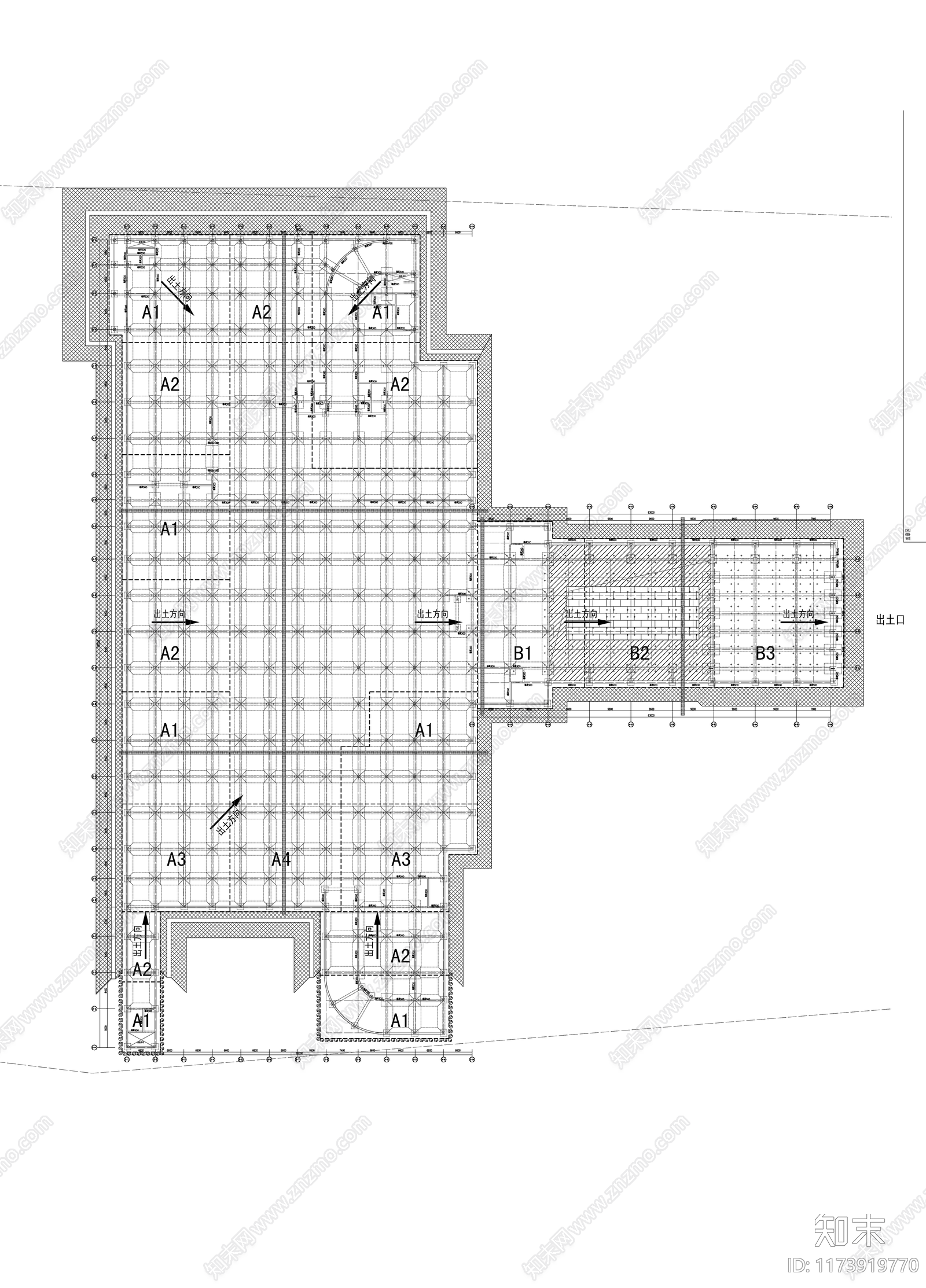
其他类型图纸 基坑围护 独立基础 钻孔灌 基坑深度约9米 施工图
1/
10
Previous
Next
其他类型图纸CAD下载
ID: 1173919770
复制
上传作者
巴迪咔哇
上传时间
2024-09-28
文件大小
2.77M
设计风格:
--
CAD版本:
CAD2011
包含文件:
CAD
授权
普通
立即下载
收藏
分享
举报
相关推荐
综合
其他图纸
其他类型图纸
三视图
吊顶图
水电图