CAD频道
CAD图库
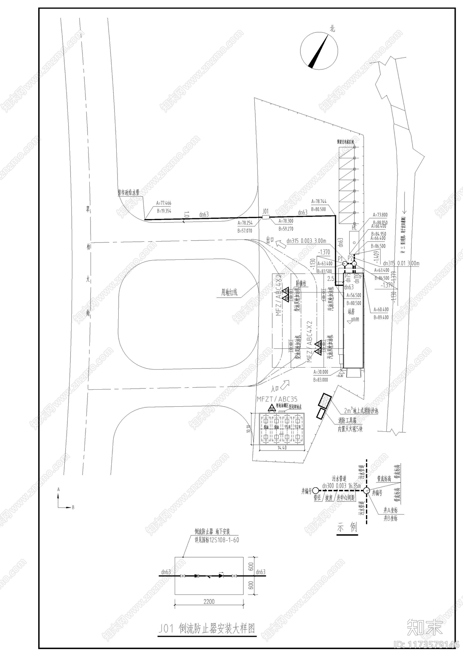
给排水图 管网 施工图
1/
2
Previous
Next
给排水图CAD下载
ID: 1173579146
复制
上传作者
焱林123456
上传时间
2024-09-25
文件大小
2.45M
设计风格:
--
CAD版本:
天正CAD3.0
包含文件:
CAD
授权
独家
立即下载
收藏
分享
举报
相关推荐
综合
给排水图
其他给排水
景观给排水
市政给排水