CAD频道
CAD图库
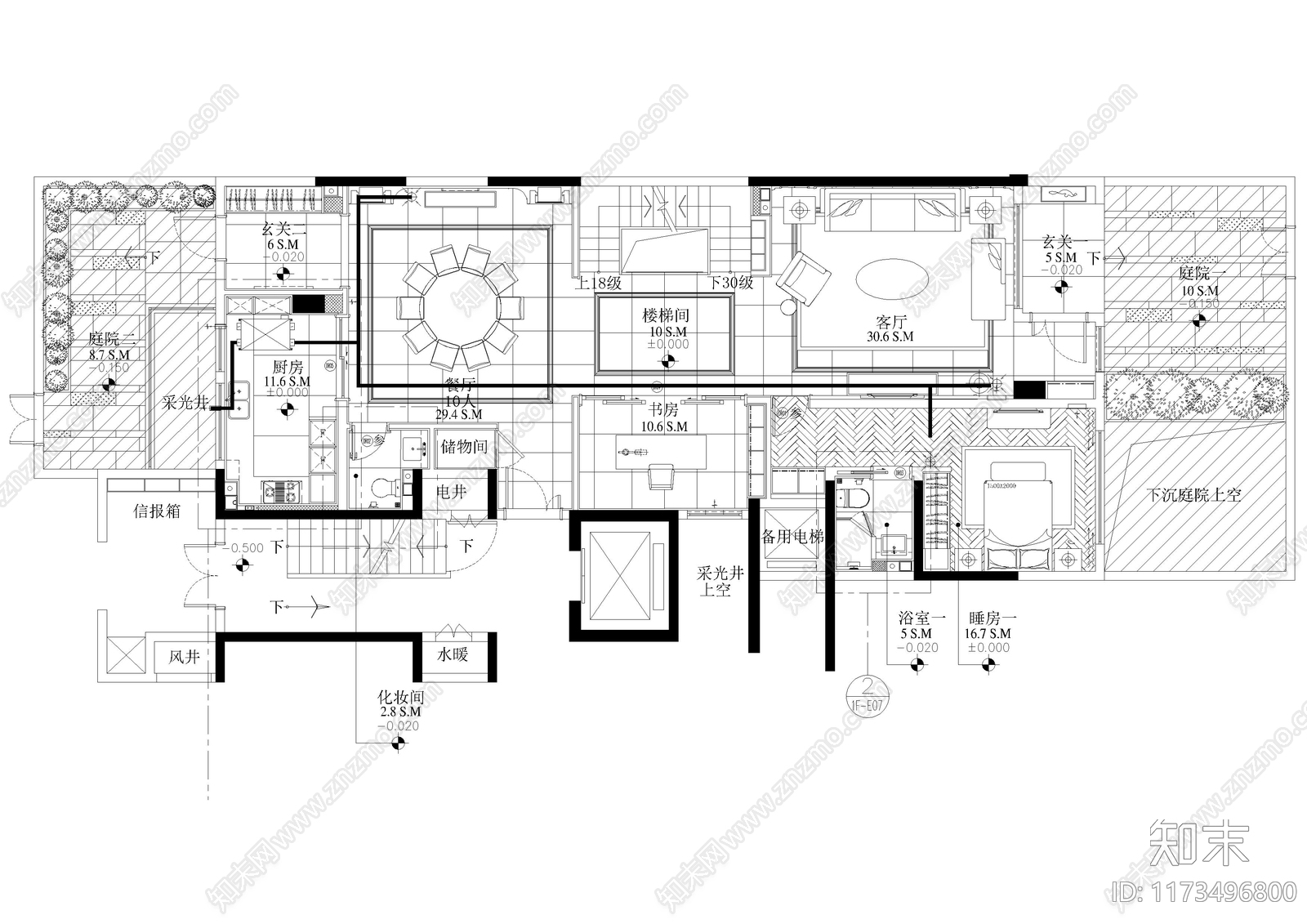
别墅 别墅阁楼 户型优化 复式 装修平面布置图 施工图 户型优化 户型优...
1/
2
Previous
Next
别墅CAD下载
ID: 1173496800
复制
上传作者
画图人生(互粉必回)
上传时间
2024-09-24
文件大小
2.32M
设计风格:
--
CAD版本:
CAD2014
包含文件:
CAD
授权
独家
立即下载
收藏
分享
举报
相关推荐
综合
家装局部空间
阁楼
客厅
餐厅
厨房
卫生间
卧室
书房
衣帽间
客餐厅