CAD频道
CAD图库
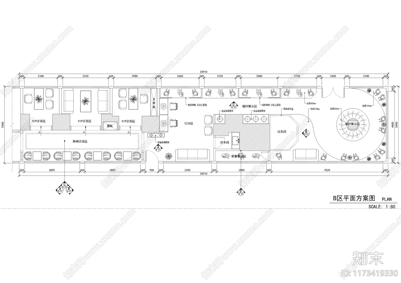
工装平面图 婚纱店平面方案图 施工图 工装平面图
1/
3
Previous
Next
工装平面图CAD下载
ID: 1173419330
复制
上传作者
大白搬砖来了
上传时间
2024-09-24
文件大小
1.28M
设计风格:
--
CAD版本:
CAD2004
包含文件:
CAD
授权
独家
立即下载
收藏
分享
举报
相关推荐
综合
商业空间
婚纱店
售楼处
商场
其他商业空间
超市
服装店
书店
美甲店
珠宝店