1/3


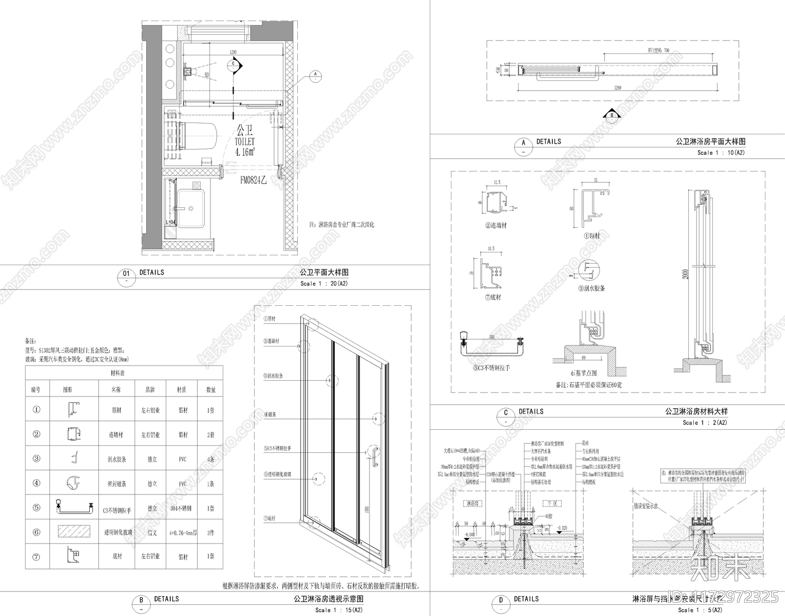
现代卫浴节点CAD下载
ID: 1172972325
复制
上传作者
芗与与与
芗与与与上传时间2024-09-19
文件大小0.32M
设计风格:--
CAD版本:CAD2010
包含文件:CAD
授权独家
立即下载
收藏
分享
举报
相关推荐
综合
卫浴节点
淋浴房节点
地漏节点
镜子节点
拖把池节点
卫生间防水
卫生间排水
洗手台节点
卫生间隔断
卫生间综合节点


芗与与与上传时间2024-09-19
文件大小0.32M
设计风格:--
CAD版本:CAD2010
包含文件:CAD
授权独家