CAD频道
CAD图库
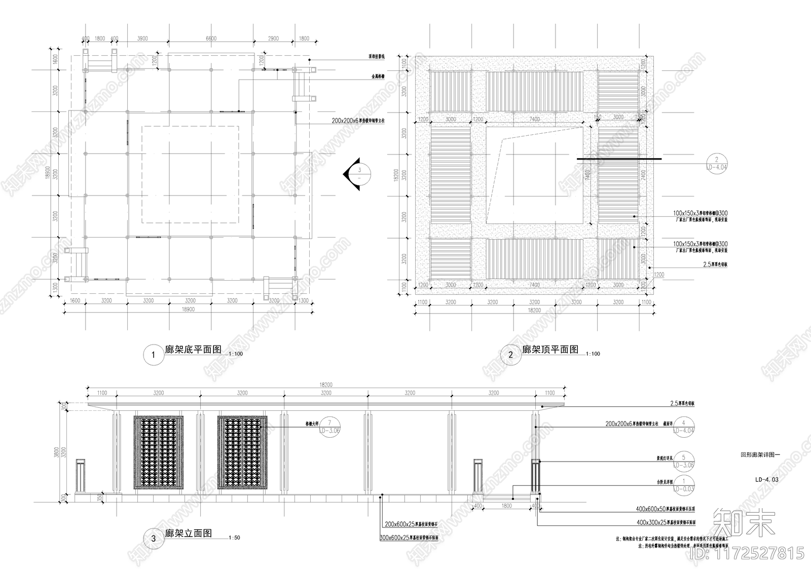
现代廊架 回廊 施工图
1/
3
Previous
Next
现代廊架CAD下载
ID: 1172527815
复制
上传作者
予以==
上传时间
2024-09-13
文件大小
4.8M
设计风格:
--
CAD版本:
CAD2013
包含文件:
CAD
授权
独家
立即下载
收藏
分享
举报
相关推荐
综合
景观小品
廊架
亭子
景墙
综合景观小品
雨棚
围墙
挡土墙
入口
景观坐凳