CAD频道
CAD图库
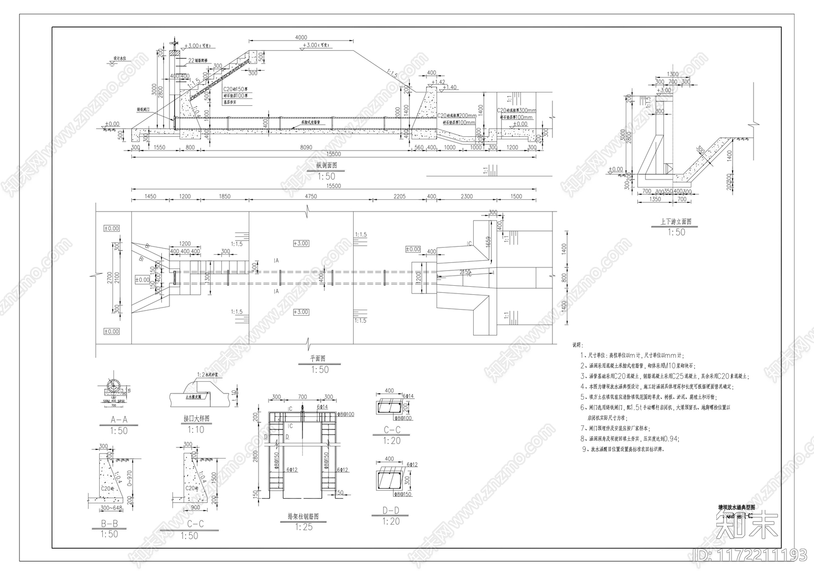
给排水图 塘坝清淤 农田放水涵 水渠涵洞 农田改造 施工图
1/
2
Previous
Next
给排水图CAD下载
ID: 1172211193
复制
上传作者
哪吒闹海(互粉)
上传时间
2024-09-10
文件大小
0.18M
设计风格:
--
CAD版本:
CAD2007
包含文件:
CAD
授权
独家
立即下载
收藏
分享
举报
相关推荐
综合
给排水图
其他给排水
景观给排水
市政给排水