CAD频道
CAD图库
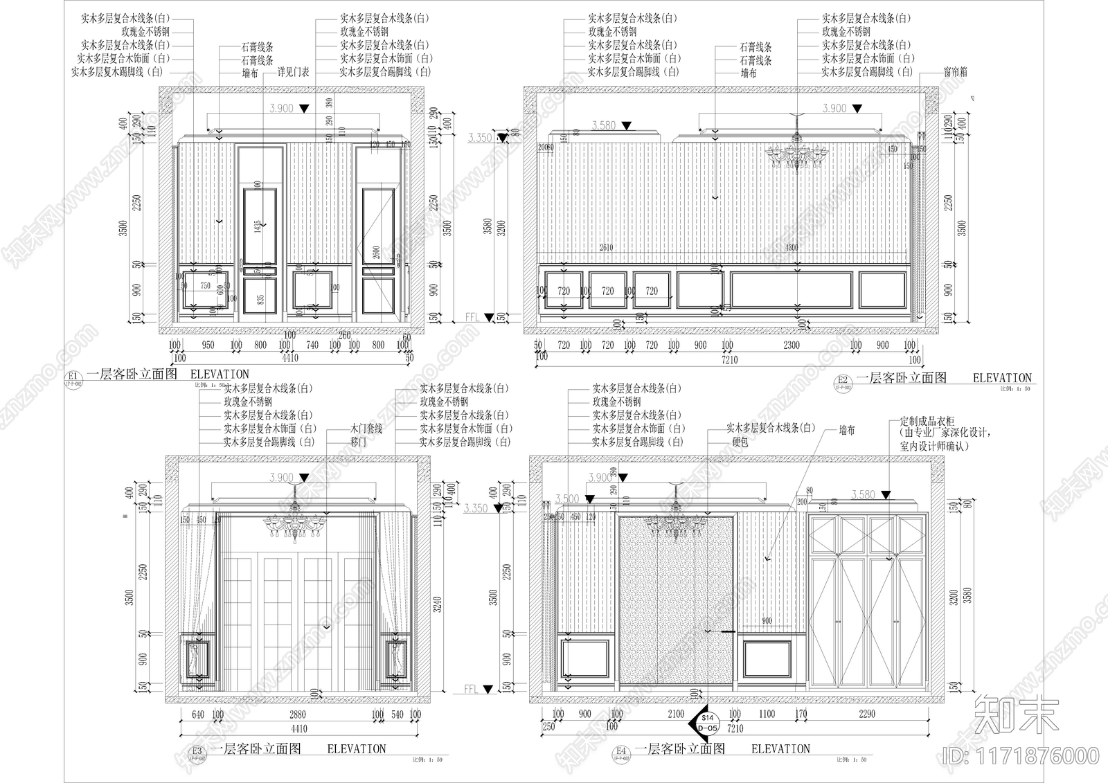
欧式卧室 别墅 施工图
1/
2
Previous
Next
欧式卧室CAD下载
ID: 1171876000
复制
上传作者
制图闪电手(互关)
上传时间
2024-09-06
文件大小
1.67M
设计风格:
--
CAD版本:
CAD2018
包含文件:
CAD
授权
独家
立即下载
收藏
分享
举报
相关推荐
综合
家装局部空间
卧室
客厅
餐厅
厨房
卫生间
书房
衣帽间
客餐厅
儿童房