CAD频道
CAD图库
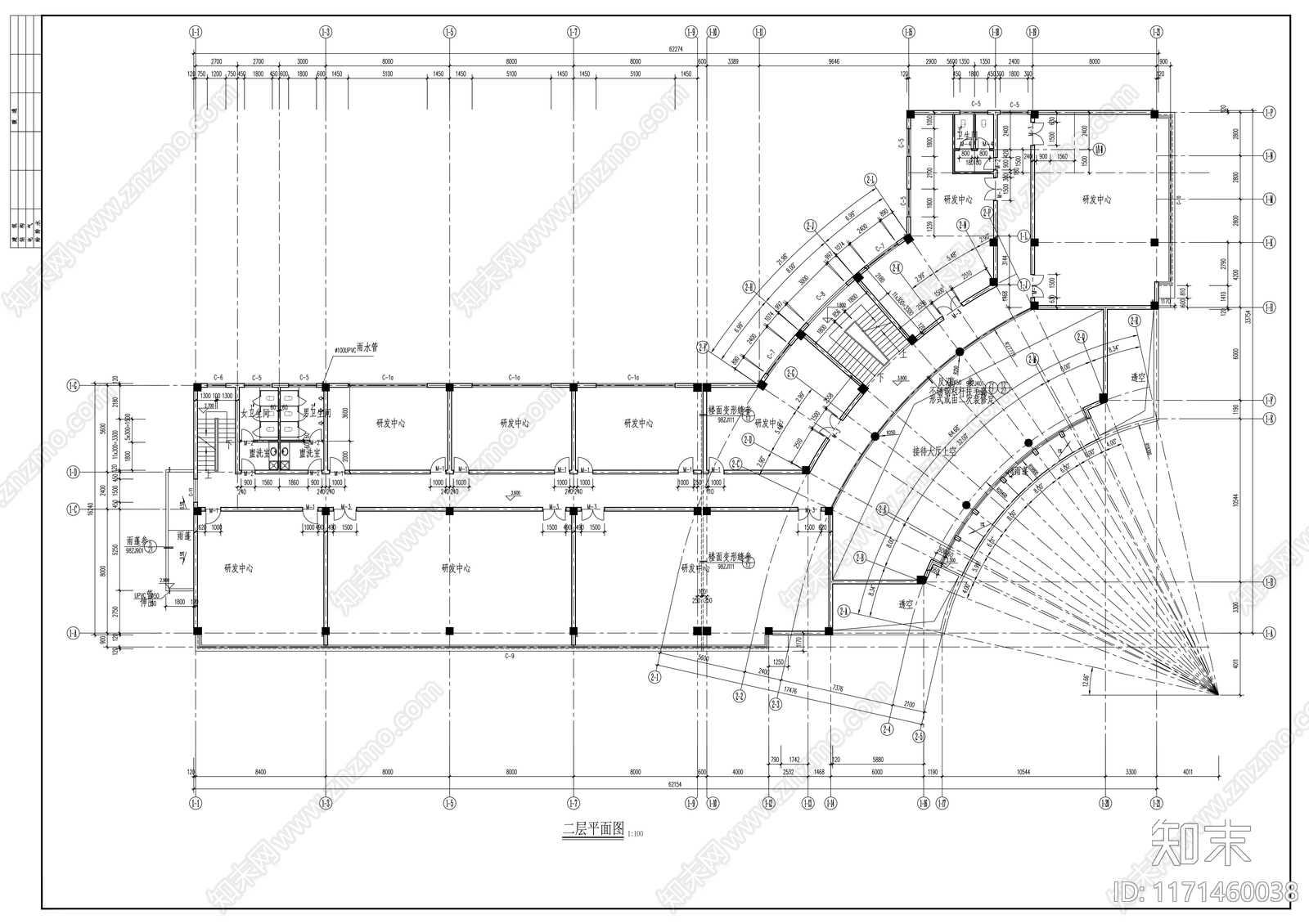
建筑平面图 综合楼 施工图
1/
9
Previous
Next
建筑平面图CAD下载
ID: 1171460038
复制
上传作者
常威打来福
上传时间
2024-09-02
文件大小
0.89M
设计风格:
--
CAD版本:
天正CAD6.0
包含文件:
CAD
授权
独家
立即下载
收藏
分享
举报
相关推荐
综合
平立面系统图
建筑平面图
平面图
立面图/剖面图
家装平面图