CAD频道
CAD图库
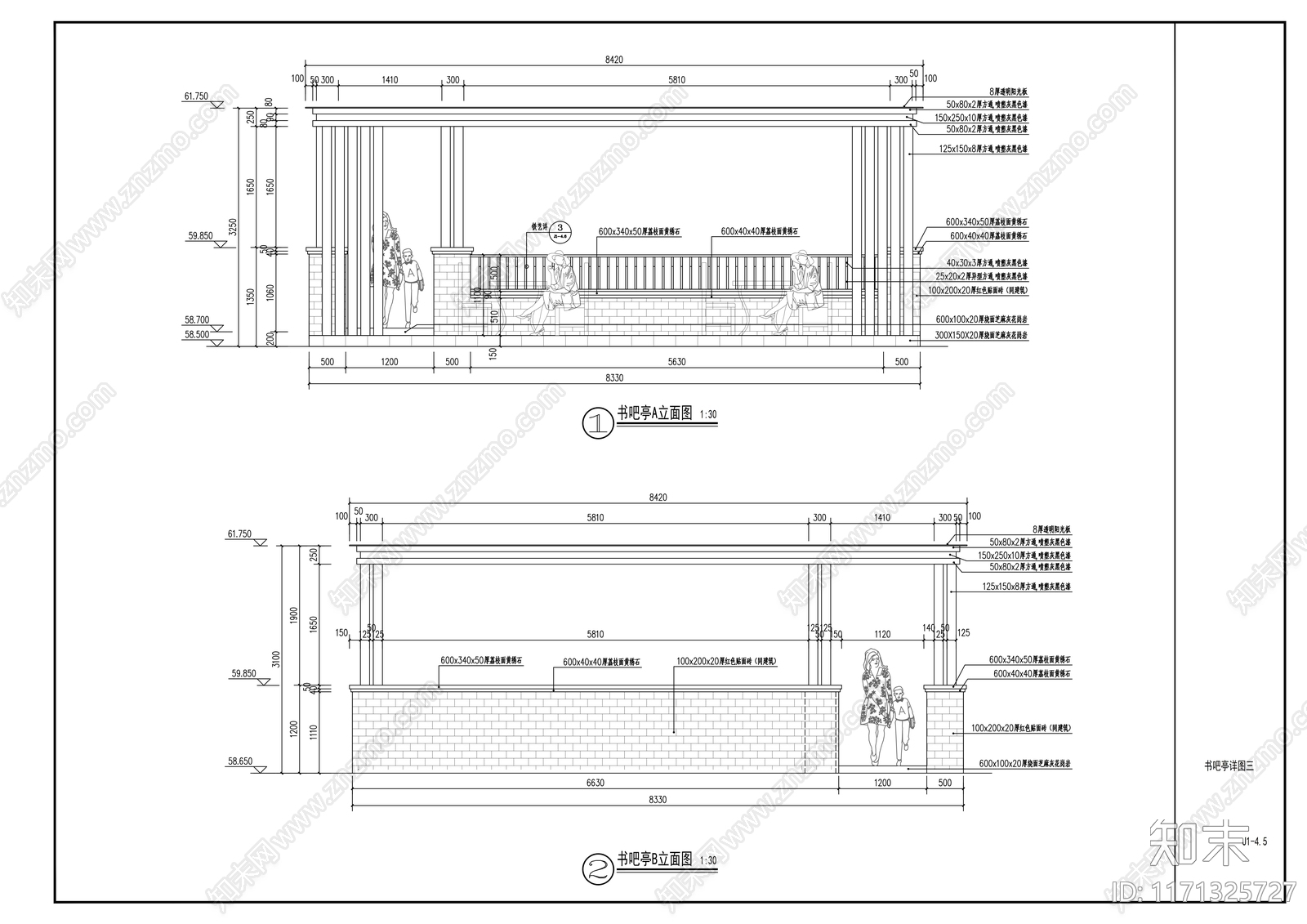
现代平台 书吧亭详图 施工图
1/
5
Previous
Next
现代平台CAD下载
ID: 1171325727
复制
上传作者
常威打来福
上传时间
2024-09-01
文件大小
0.35M
设计风格:
--
CAD版本:
天正CAD6.0
包含文件:
CAD
授权
独家
立即下载
收藏
分享
举报
相关推荐
综合
景观小品
平台
亭子
廊架
景墙
综合景观小品
雨棚
围墙
挡土墙
入口