CAD频道
CAD图库
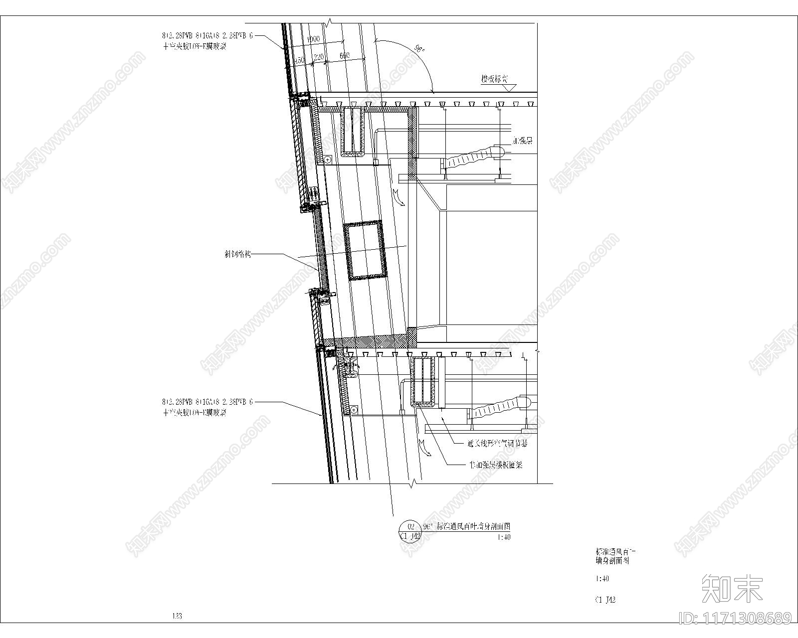
现代其他图库 标准通风百叶墙身 剖面图 施工图
现代其他图库CAD下载
ID: 1171308689
复制
上传作者
撞大墙啦
上传时间
2024-08-31
文件大小
0.21M
设计风格:
--
CAD版本:
CAD2004
包含文件:
CAD
授权
普通
立即下载
收藏
分享
举报
相关推荐
综合
CAD图库
其他图库
家具图库
灯具图库
植物图库
填充图案
交通工具图库
工装图库
制图规范
软装摆件图库