CAD频道
CAD图库
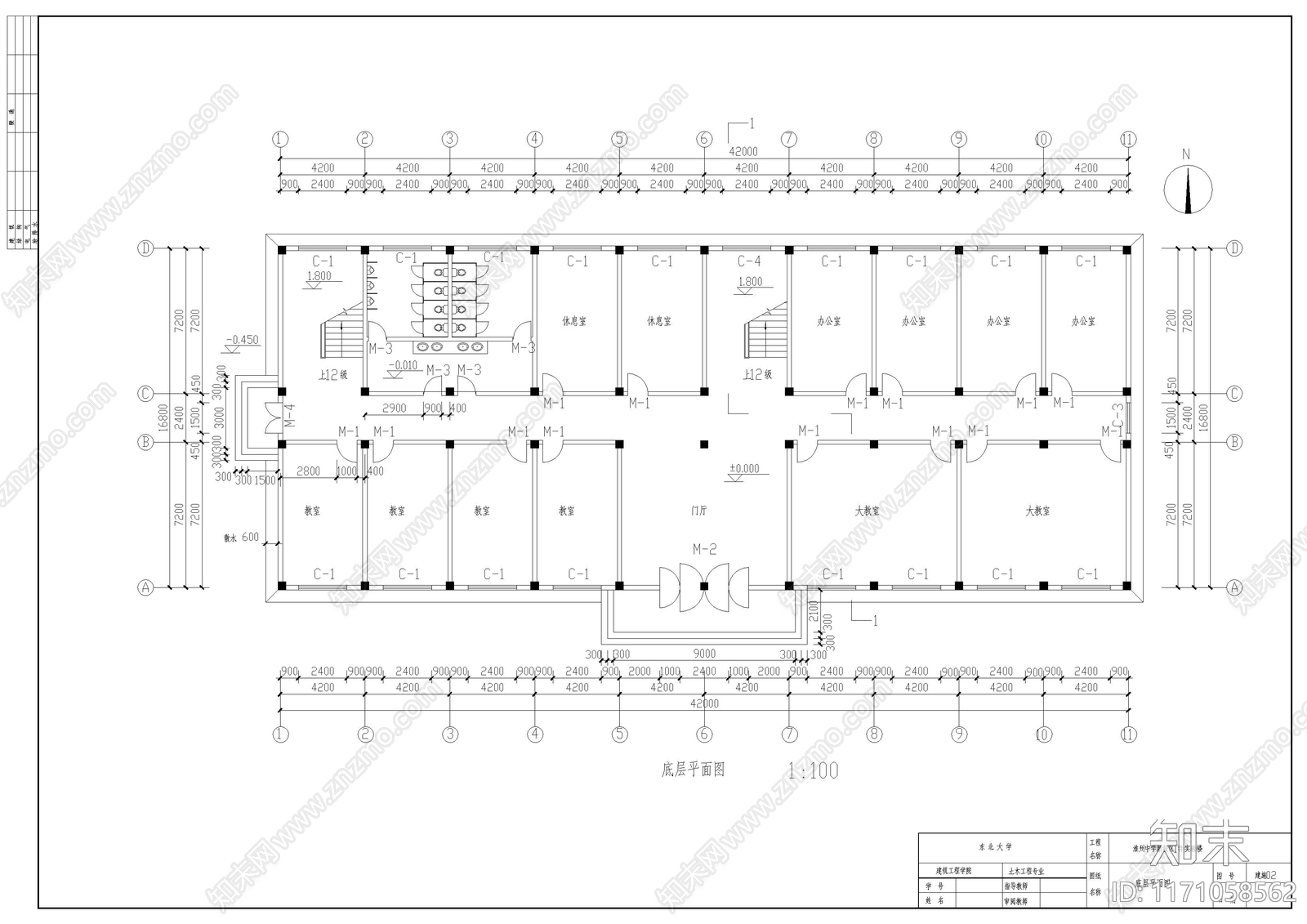
现代学校建筑 4层中学实验楼 施工图
1/
10
Previous
Next
现代学校建筑CAD下载
ID: 1171058562
复制
上传作者
QQQQ
上传时间
2024-08-28
文件大小
0.41M
设计风格:
--
CAD版本:
天正CAD6.0
包含文件:
CAD
授权
独家
立即下载
收藏
分享
举报
相关推荐
综合
教育建筑
学校建筑
幼儿园建筑