CAD频道
CAD图库
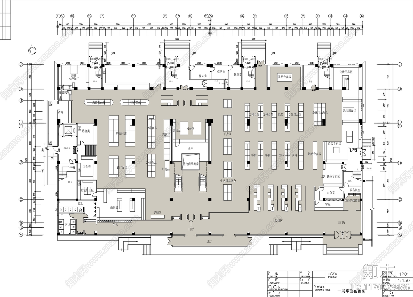
现代超市 两层连锁超市 施工图
1/
2
Previous
Next
现代超市CAD下载
ID: 1170769486
复制
上传作者
智取怂猫河
上传时间
2024-08-24
文件大小
11.01M
设计风格:
--
CAD版本:
CAD2008
包含文件:
CAD
授权
独家
立即下载
收藏
分享
举报
相关推荐
综合
商业空间
超市
售楼处
商场
其他商业空间
服装店
书店
美甲店
珠宝店
4s店