CAD频道
CAD图库
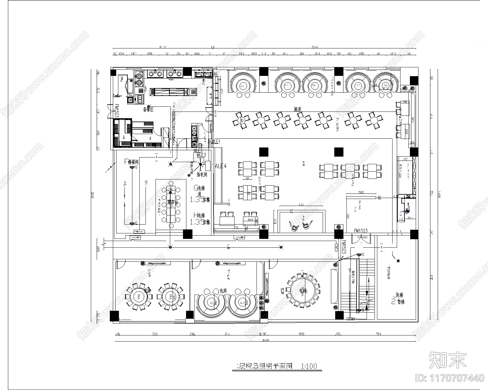
消防图 火锅店 喷淋消防图 报警器消防图 施工图
1/
2
Previous
Next
消防图CAD下载
ID: 1170707440
复制
上传作者
智取怂猫河
上传时间
2024-08-23
文件大小
0.7M
设计风格:
--
CAD版本:
CAD2004
包含文件:
CAD
授权
独家
立即下载
收藏
分享
举报
相关推荐
综合
机电工程
消防设施
给排水图
水处理
暖通空调
电气图
电气工程节点
机械设备
其他机电图纸
建筑给排水