CAD频道
CAD图库
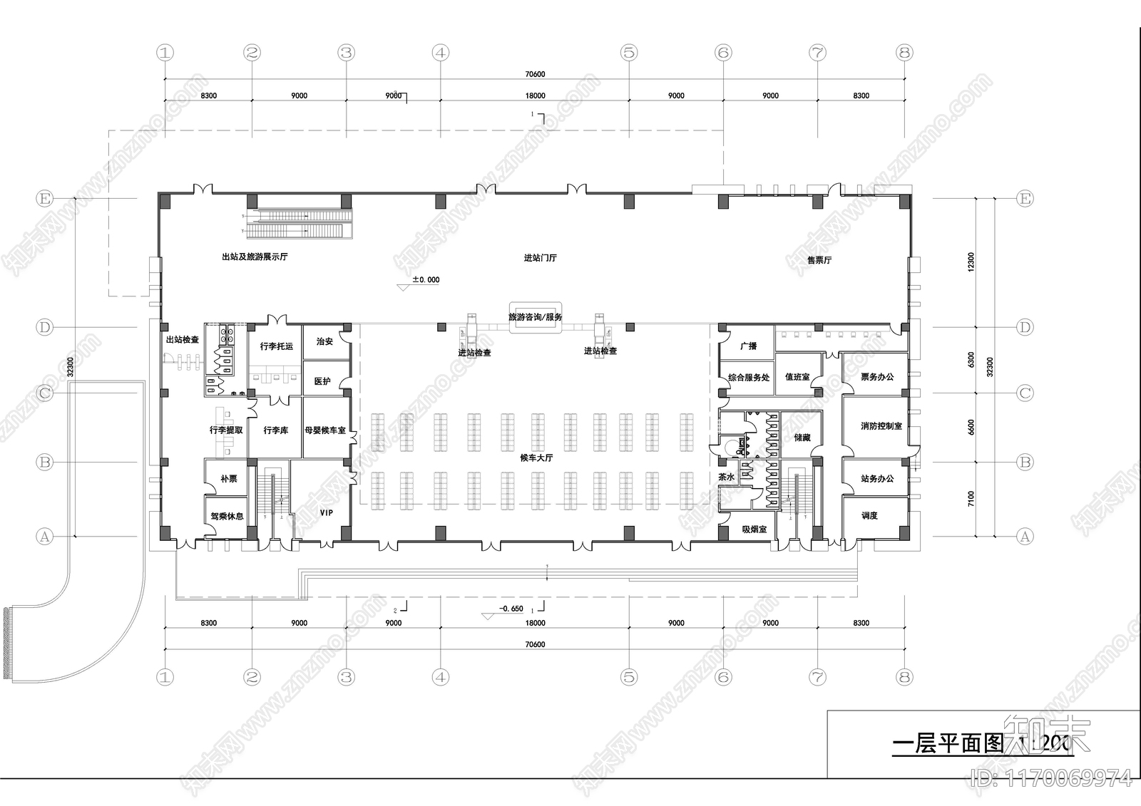
现代客运站 客运站站房 客运站综合服务楼 施工图
1/
3
Previous
Next
现代客运站CAD下载
ID: 1170069974
复制
上传作者
清晨的晚风
上传时间
2024-08-15
文件大小
0.32M
设计风格:
--
CAD版本:
CAD2014
包含文件:
CAD
授权
独家
立即下载
收藏
分享
举报
相关推荐
综合
交通建筑
客运站
机场建筑
加油站
服务区
驿站
其他交通建筑
车站