CAD频道
CAD图库
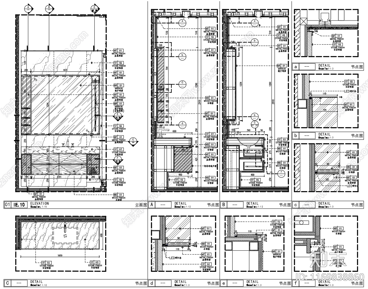
现代新中式卫浴节点 节点 淋浴房节点 镜子节点 施工图 卫浴节点 镜子节...
1/
3
Previous
Next
现代新中式卫浴节点CAD下载
ID: 1169838860
复制
上传作者
HAHA
上传时间
2024-08-13
文件大小
2.63M
设计风格:
--
CAD版本:
CAD2004
包含文件:
CAD
授权
独家
立即下载
收藏
分享
举报
相关推荐
综合
软装摆件图库
镜子
窗帘
地毯
综合软装摆件图库
珠宝首饰
佛龛佛像
摆件
书
玩具