CAD频道
CAD图库
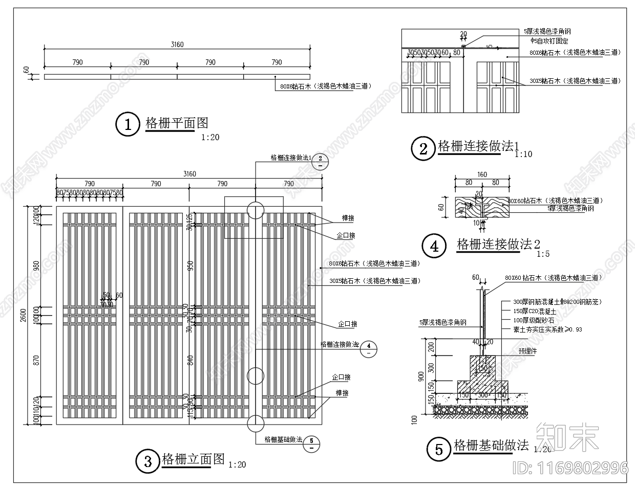
现代其他节点详图 木格栅平面立面图 木质格栅节点图 施工图
现代其他节点详图CAD下载
ID: 1169802996
复制
上传作者
小小鱼鱼
上传时间
2024-08-13
文件大小
0.1M
设计风格:
--
CAD版本:
CAD2004
包含文件:
CAD
授权
独家
立即下载
收藏
分享
举报
相关推荐
综合
立面图/剖面图
立面图
家装立面图
建筑立面图
景观立面图
工装立面图
剖面图