CAD频道
CAD图库
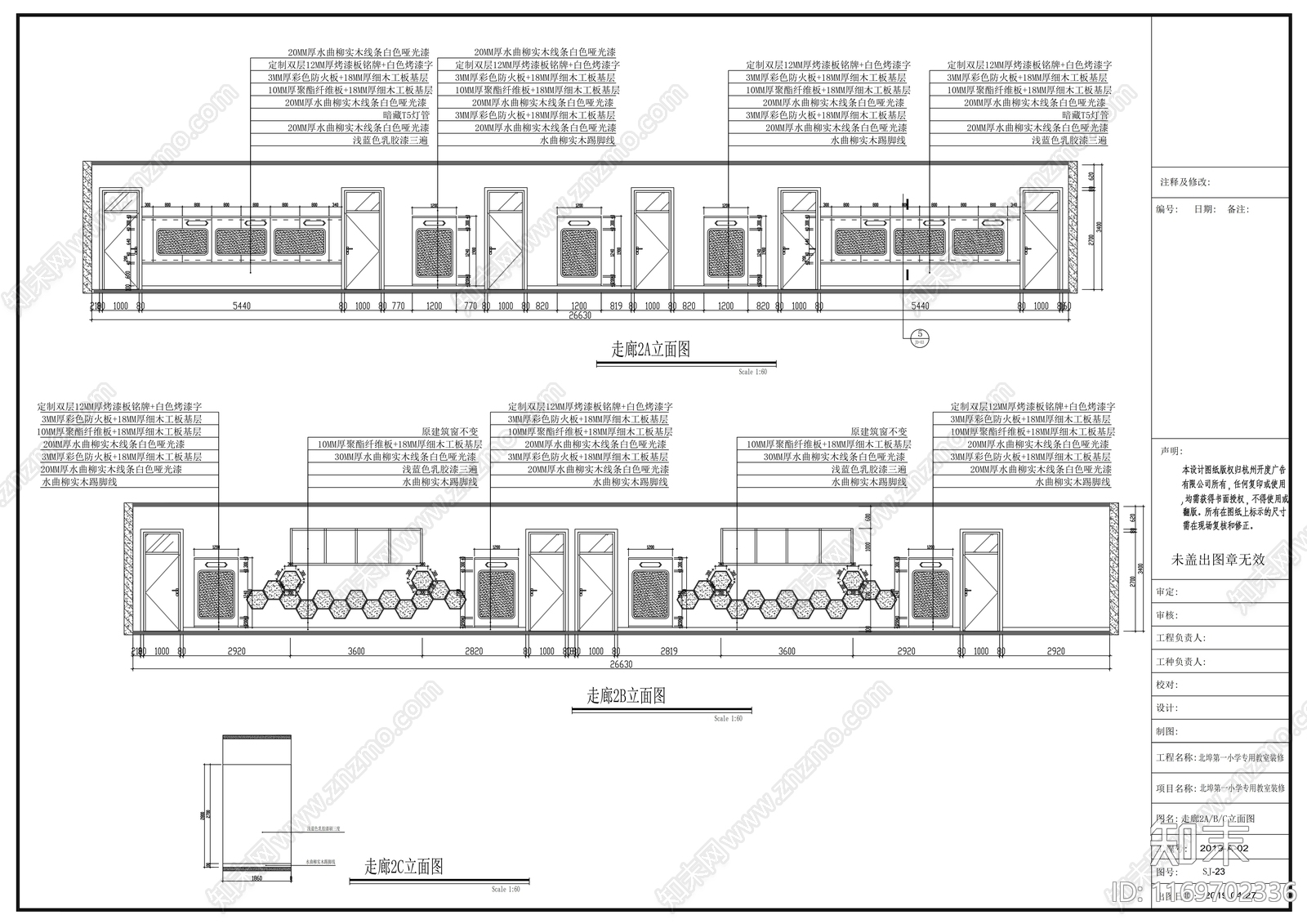
现代幼儿园 小学专用教室装修 施工图
1/
10
Previous
Next
现代幼儿园CAD下载
ID: 1169702336
复制
上传作者
常威打来福
上传时间
2024-08-12
文件大小
3.98M
设计风格:
--
CAD版本:
天正CAD6.0
包含文件:
CAD
授权
独家
立即下载
收藏
分享
举报
相关推荐
综合
教育空间
幼儿园
学校
培训中心
其他教育空间
实验室
教室
画室
舞蹈室