CAD频道
CAD图库
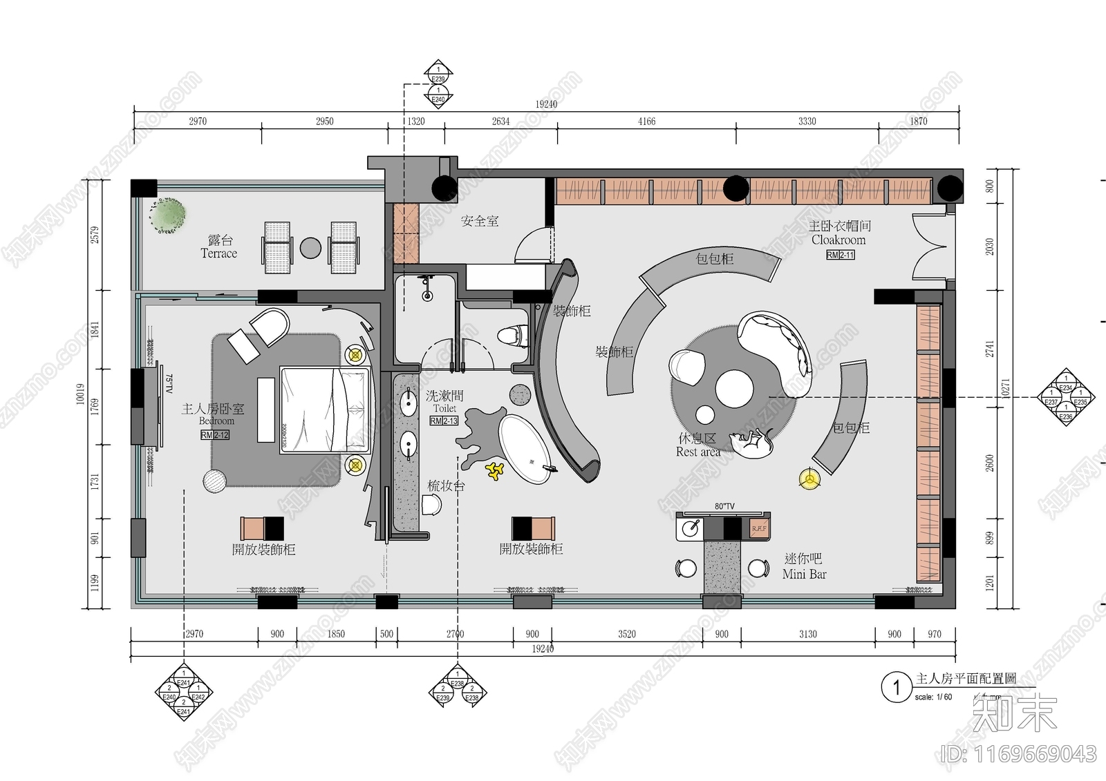
现代卧室 190㎡主卧 别墅 大 样板房公寓 家装 施工图
1/
10
Previous
Next
现代卧室CAD下载
ID: 1169669043
复制
上传作者
@白鹿原
上传时间
2024-08-11
文件大小
26.08M
设计风格:
--
CAD版本:
CAD2004
包含文件:
CAD
授权
独家
立即下载
收藏
分享
举报
相关推荐
综合
家装局部空间
卧室
客厅
餐厅
厨房
卫生间
书房
衣帽间
客餐厅
儿童房