CAD频道
CAD图库
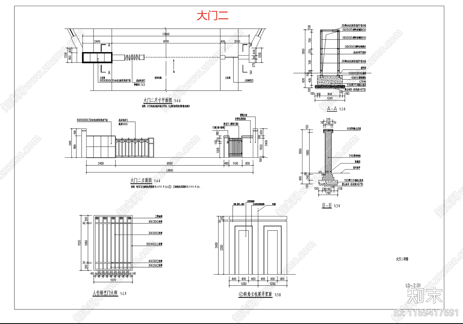
现代工业入口 厂区办公区 厂区大 电动 简易 施工图
1/
3
Previous
Next
现代工业入口CAD下载
ID: 1169417691
复制
上传作者
致癫方休
上传时间
2024-08-08
文件大小
0.13M
设计风格:
--
CAD版本:
CAD2010
包含文件:
CAD
授权
独家
立即下载
收藏
分享
举报
相关推荐
综合
景观小品
入口
亭子
廊架
景墙
综合景观小品
雨棚
围墙
挡土墙
景观坐凳