CAD频道
CAD图库
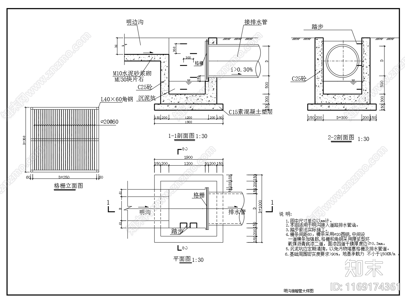
给排水节点详图 明沟接暗管大样图 明沟接排水管涵 施工图
给排水节点详图CAD下载
ID: 1169174361
复制
上传作者
小小鱼鱼
上传时间
2024-08-06
文件大小
0.13M
设计风格:
--
CAD版本:
CAD2004
包含文件:
CAD
授权
独家
立即下载
收藏
分享
举报
相关推荐
综合
电气工程节点
给排水节点详图
暖通节点
电气节点
水处理节点
其他电气工程节点