CAD频道
CAD图库
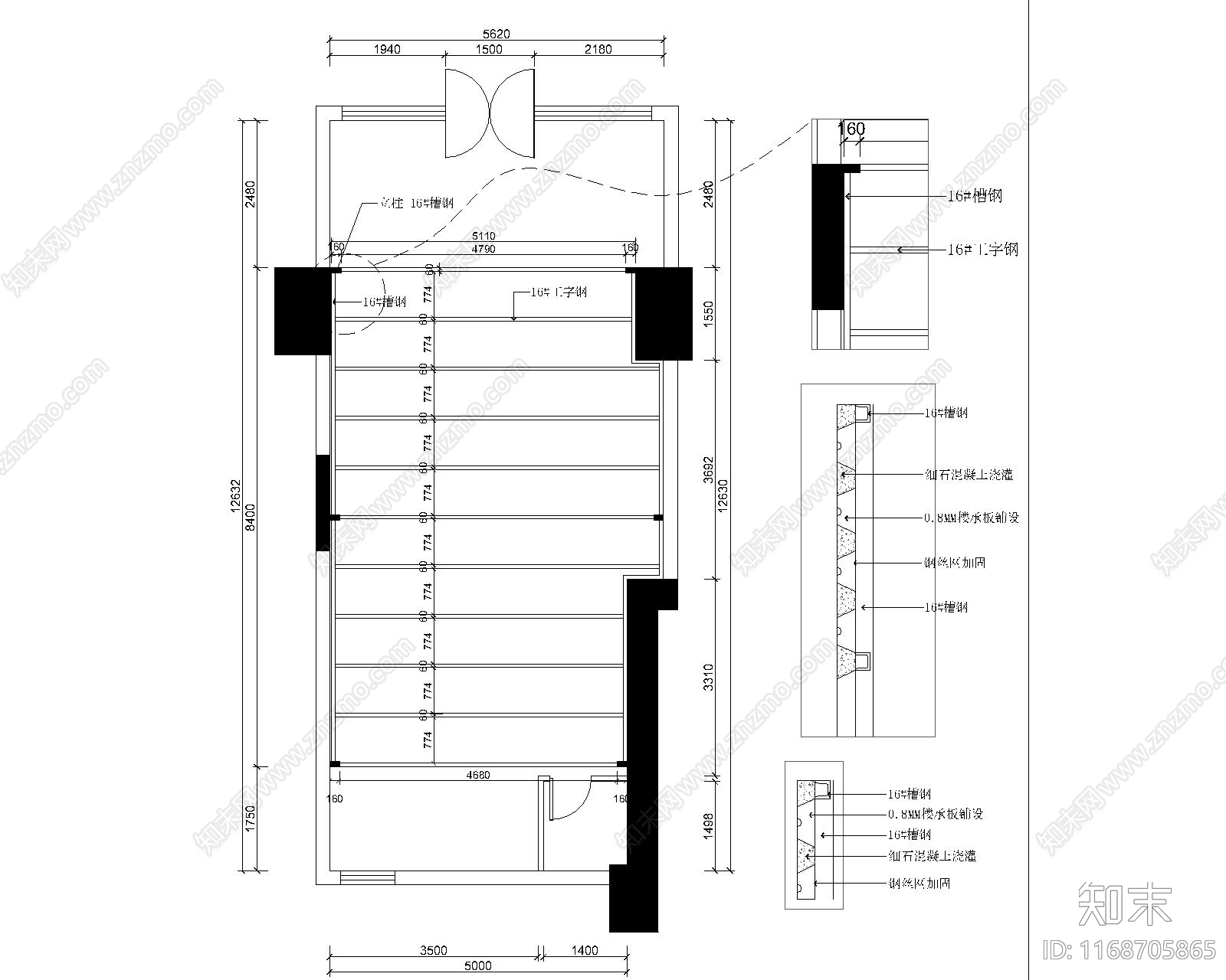
钢结构 阁楼 夹层 工字钢 施工图 钢结构
钢结构CAD下载
ID: 1168705865
复制
上传作者
聆听小七
上传时间
2024-08-01
文件大小
0.1M
设计风格:
--
CAD版本:
CAD2005
包含文件:
CAD
授权
独家
立即下载
收藏
分享
举报
相关推荐
综合
家装局部空间
阁楼
客厅
餐厅
厨房
卫生间
卧室
书房
衣帽间
客餐厅