CAD频道
CAD图库
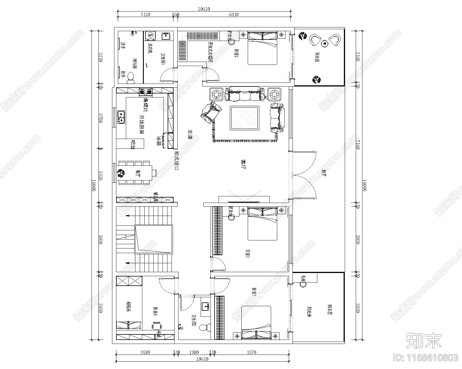
新中式别墅建筑 平立剖节点大样 天地板水电暖 平立剖节点 自建房 施工图
新中式别墅建筑CAD下载
ID: 1168610803
复制
上传作者
-江月诗
上传时间
2024-07-31
文件大小
2.09M
设计风格:
--
CAD版本:
CAD2018
包含文件:
CAD
授权
普通
立即下载
收藏
分享
举报
相关推荐
综合
居住建筑
别墅建筑
住宅楼建筑
四合院
其他居住建筑
高层住宅
多层住宅
低层住宅
公寓建筑
联排住宅