CAD频道
CAD图库
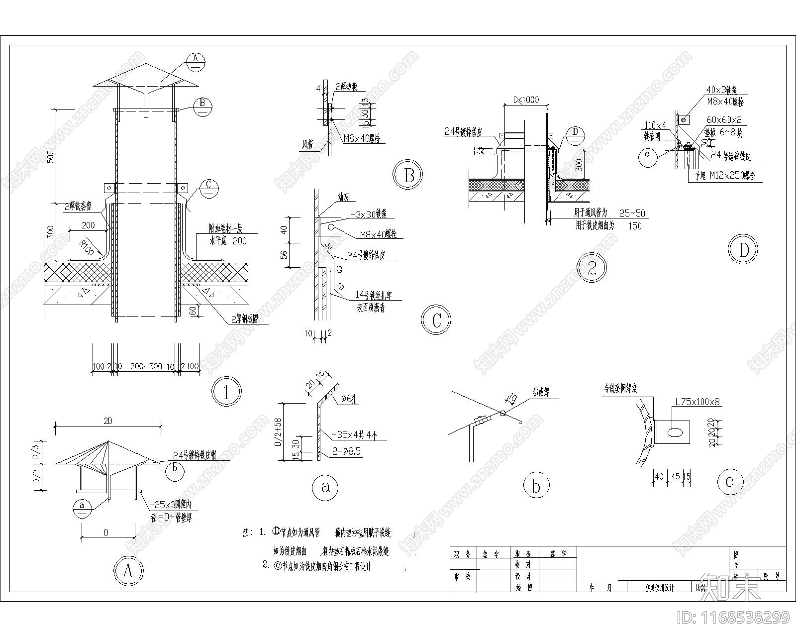
现代其他节点详图 铁皮烟囱通风管 出屋面 施工图
现代其他节点详图CAD下载
ID: 1168538299
复制
上传作者
撞大墙啦
上传时间
2024-07-30
文件大小
0.08M
设计风格:
--
CAD版本:
CAD2004
包含文件:
CAD
授权
普通
立即下载
收藏
分享
举报
相关推荐
综合
节点详图
其他节点详图
吊顶节点
墙面节点
地面节点
门节点
建筑工程节点
景观小品
楼梯节点
水景