1/5


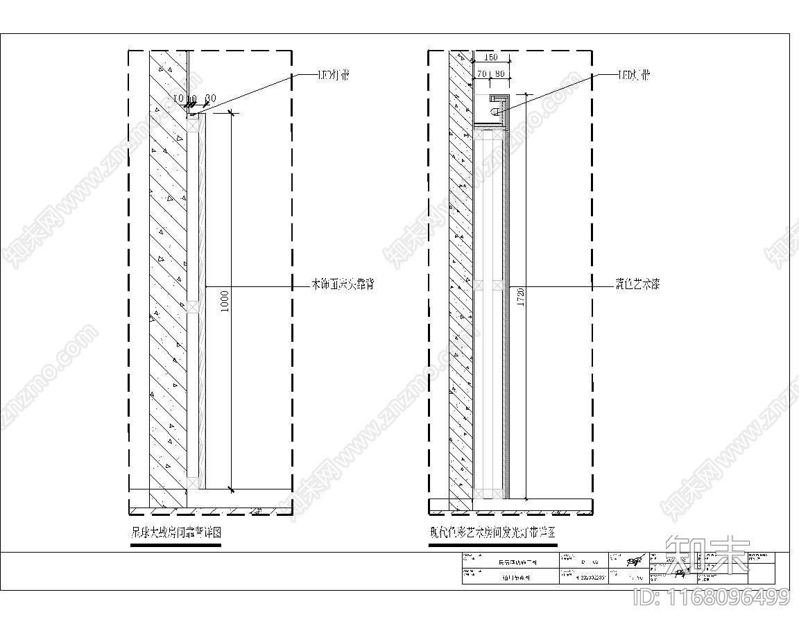
新中式日式住宅楼建筑CAD下载
ID: 1168096499
复制
上传作者
-江月诗
-江月诗上传时间2024-07-26
文件大小1.16M
设计风格:--
CAD版本:CAD2014
包含文件:CAD
授权普通
立即下载
收藏
分享
举报
相关推荐
综合
居住建筑
住宅楼建筑
四合院
别墅建筑
其他居住建筑
高层住宅
多层住宅
低层住宅
公寓建筑
联排住宅


-江月诗上传时间2024-07-26
文件大小1.16M
设计风格:--
CAD版本:CAD2014
包含文件:CAD
授权普通