CAD频道
CAD图库
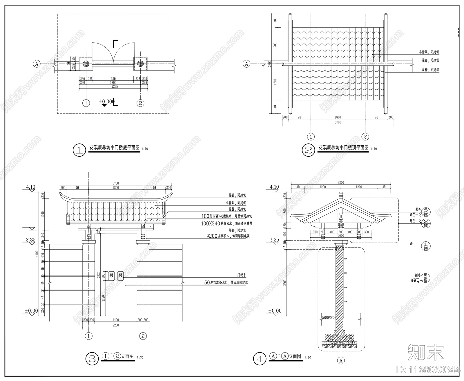
现代入口 入户小楼详图 入户楼详图 施工图
1/
3
Previous
Next
现代入口CAD下载
ID: 1168060344
复制
上传作者
景观设计小乐
上传时间
2024-07-25
文件大小
1.81M
设计风格:
--
CAD版本:
CAD2007
包含文件:
CAD
授权
普通
立即下载
收藏
分享
举报
相关推荐
综合
景观小品
入口
亭子
廊架
景墙
综合景观小品
雨棚
围墙
挡土墙
景观坐凳