CAD频道
CAD图库
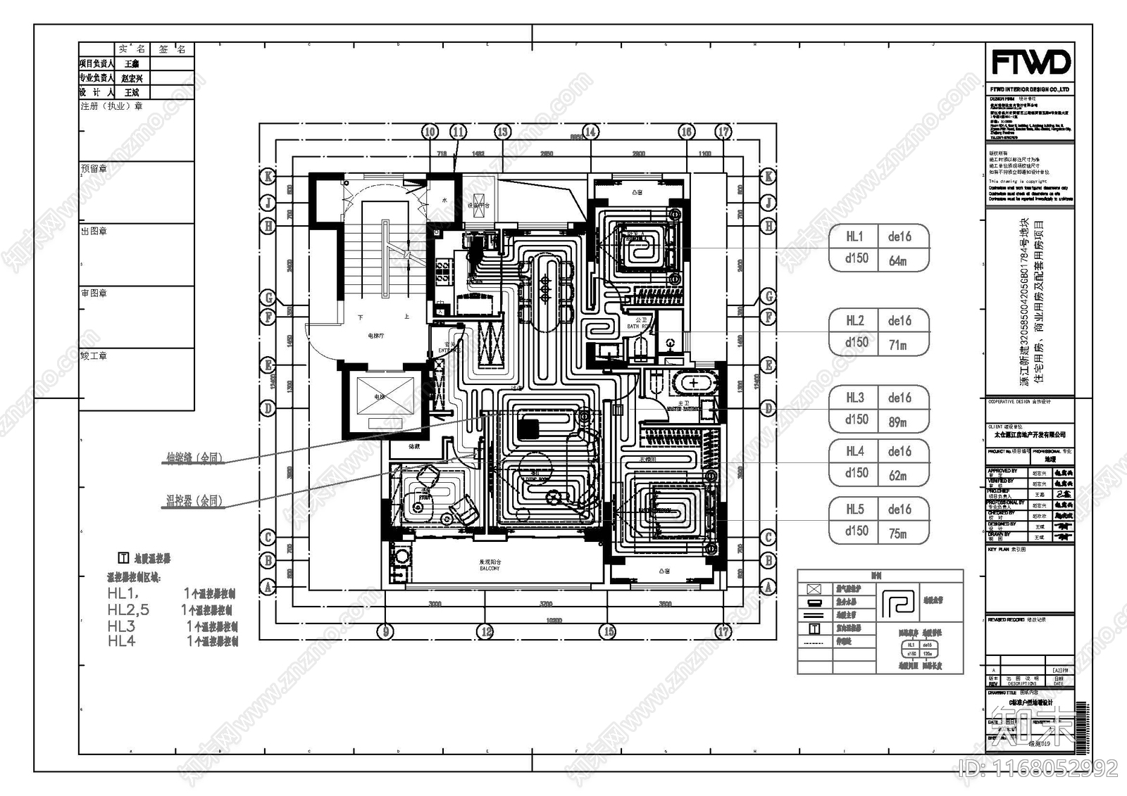
其他类型图纸 户型地暖图 施工图
1/
5
Previous
Next
其他类型图纸CAD下载
ID: 1168052992
复制
上传作者
暗夜迦南
上传时间
2024-07-25
文件大小
4.08M
设计风格:
--
CAD版本:
CAD2018
包含文件:
CAD
授权
普通
立即下载
收藏
分享
举报
相关推荐
综合
其他图纸
其他类型图纸
三视图
吊顶图
水电图