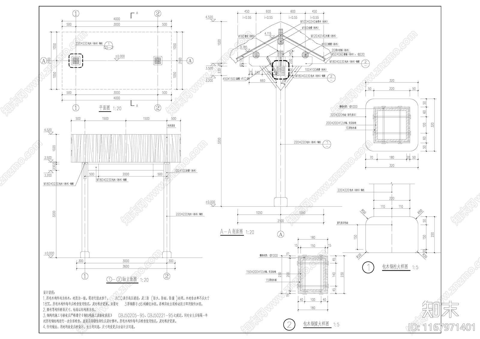
新中式中式门楼施工图下载【ID:1167971401】

新中式中式门楼CAD下载

ID: 1167971401
复制
上传作者
景观施工图互粉景观施工图互粉

上传时间2024-07-24

文件大小2.42M

设计风格:--

CAD版本:CAD2007

包含文件:CAD

授权独家

立即下载
收藏
分享
举报
相关推荐
综合
景观小品
门楼
亭子
廊架
景墙
综合景观小品
雨棚
围墙
挡土墙
入口