CAD频道
CAD图库
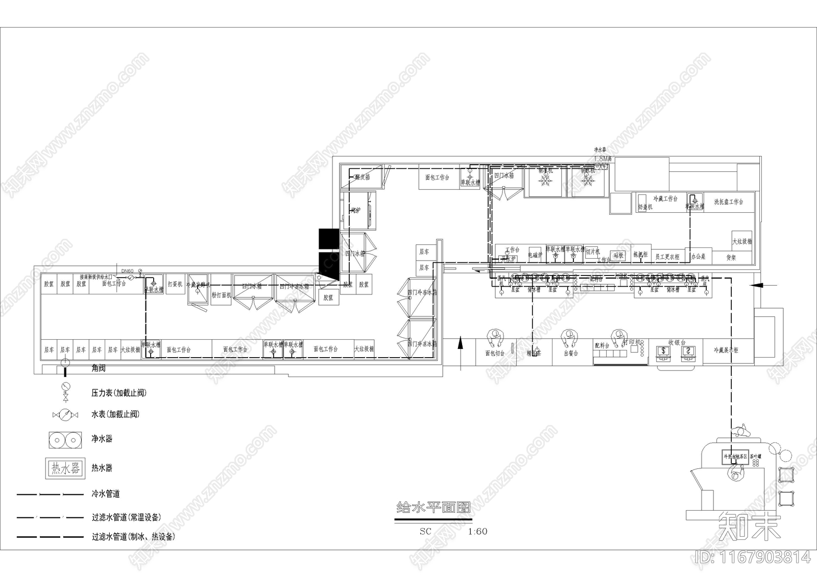
给排水图 奈雪奶茶店给排水 施工图
1/
4
Previous
Next
给排水图CAD下载
ID: 1167903814
复制
上传作者
大白搬砖来了
上传时间
2024-07-24
文件大小
1.81M
设计风格:
--
CAD版本:
CAD2004
包含文件:
CAD
授权
独家
立即下载
收藏
分享
举报
相关推荐
综合
给排水图
其他给排水
景观给排水
市政给排水