CAD频道
CAD图库
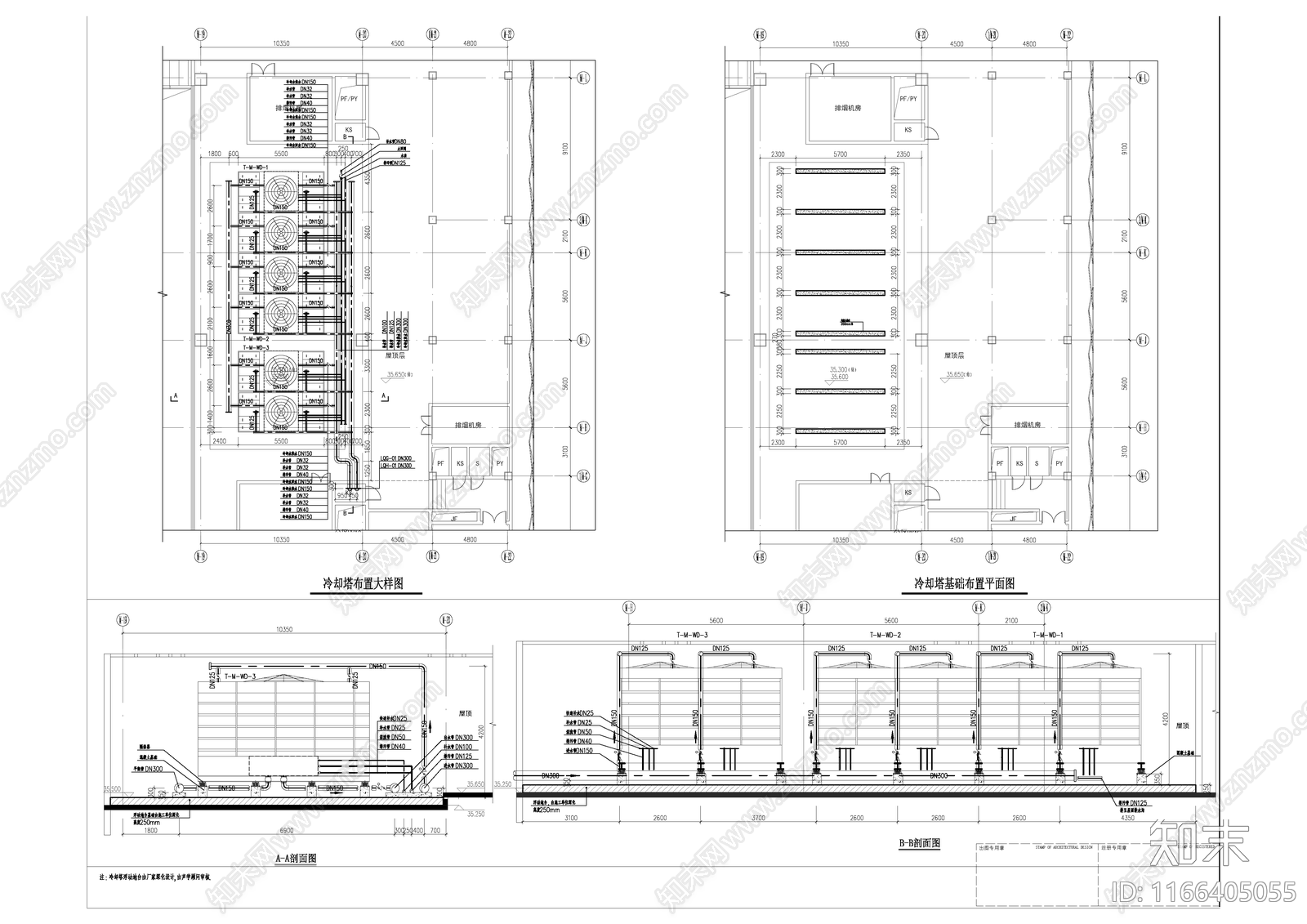
暖通节点 风冷模块机组大样 施工图
1/
3
Previous
Next
暖通节点CAD下载
ID: 1166405055
复制
上传作者
景观施工图互粉
上传时间
2024-07-09
文件大小
2.92M
设计风格:
--
CAD版本:
CAD2007
包含文件:
CAD
授权
独家
立即下载
收藏
分享
举报
相关推荐
综合
电气工程节点
暖通节点
给排水节点详图
电气节点
水处理节点
其他电气工程节点