1/10


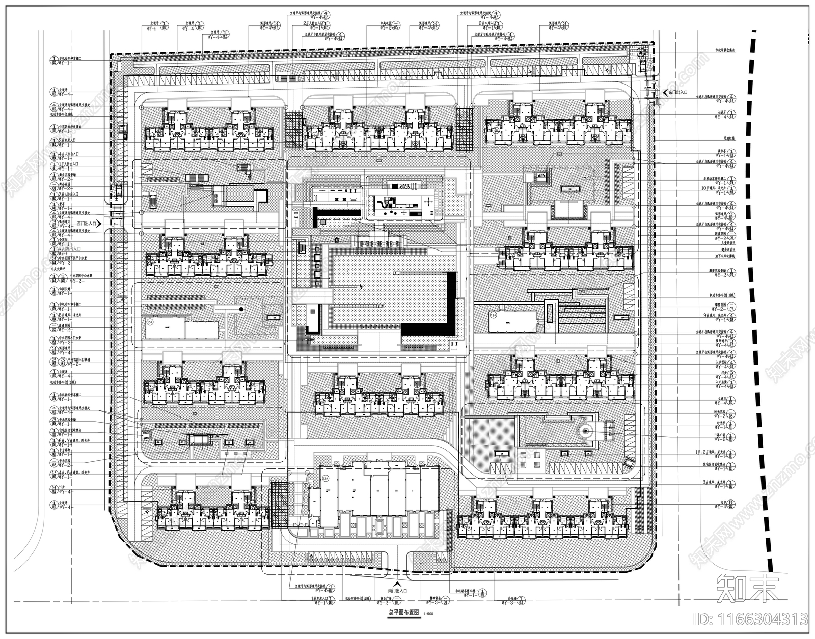
现代小区景观CAD下载
ID: 1166304313
复制
上传作者
景观设计小乐
景观设计小乐上传时间2024-07-08
文件大小462.32M
设计风格:--
CAD版本:CAD2007
包含文件:CAD
授权普通
立即下载
收藏
分享
举报
相关推荐
综合
居住区景观
示范区景观
庭院
屋顶花园
售楼处景观
小区主入口
小区中心广场
宅间绿地
社区儿童区
社区健身区


景观设计小乐上传时间2024-07-08
文件大小462.32M
设计风格:--
CAD版本:CAD2007
包含文件:CAD
授权普通