CAD频道
CAD图库
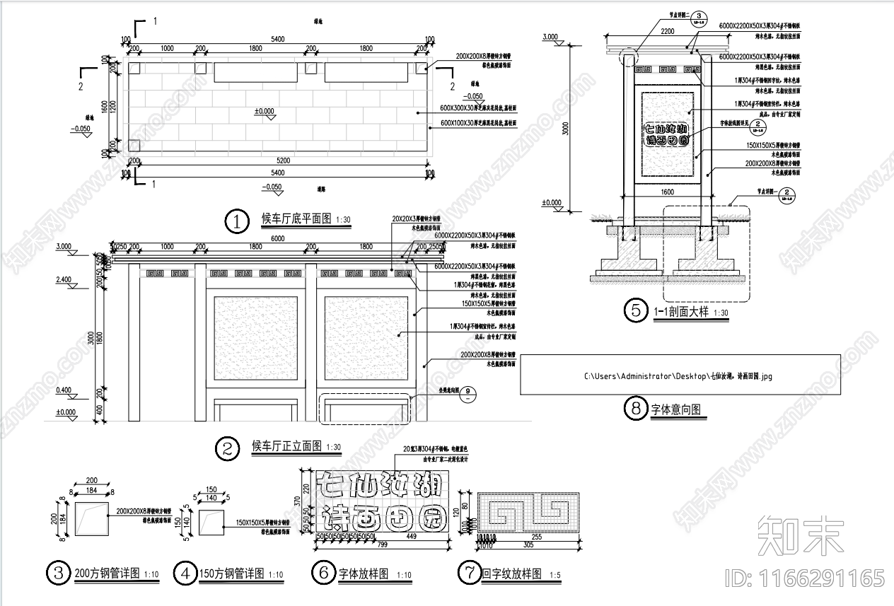
现代亭子节点 候车厅 公交站 施工图
1/
2
Previous
Next
现代亭子节点CAD下载
ID: 1166291165
复制
上传作者
盗图必究(详图)
上传时间
2024-07-08
文件大小
0.37M
设计风格:
--
CAD版本:
CAD2004
包含文件:
CAD
授权
独家
立即下载
收藏
分享
举报
相关推荐
综合
景观小品
亭子
廊架
景墙
综合景观小品
雨棚
围墙
挡土墙
入口
景观坐凳