CAD频道
CAD图库
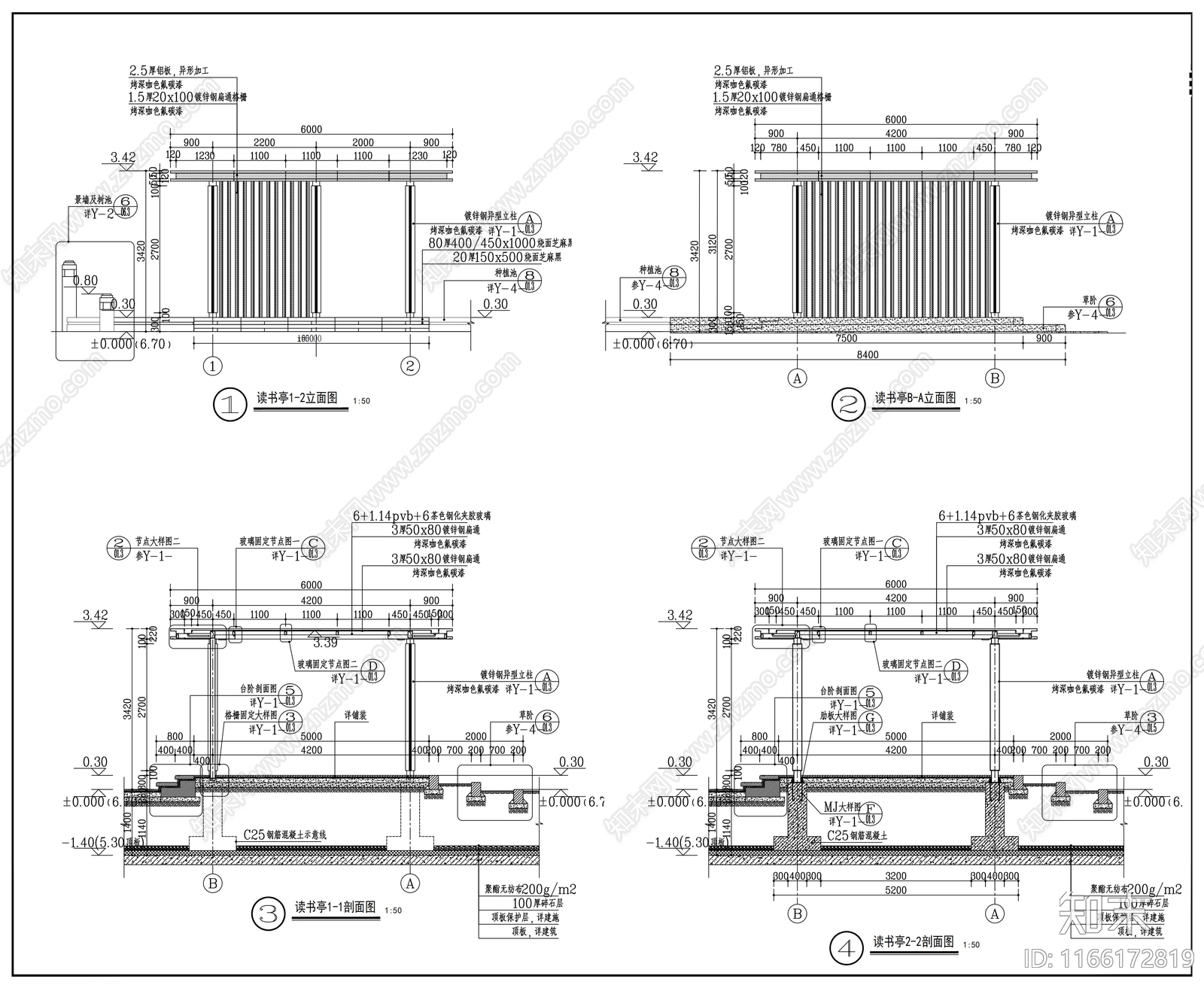
现代廊架节点 读书亭详图 书吧详图 阅读廊架 施工图
1/
4
Previous
Next
现代廊架节点CAD下载
ID: 1166172819
复制
上传作者
景观设计小乐
上传时间
2024-07-07
文件大小
3.97M
设计风格:
--
CAD版本:
CAD2007
包含文件:
CAD
授权
普通
立即下载
收藏
分享
举报
相关推荐
综合
景观小品
廊架
亭子
景墙
综合景观小品
雨棚
围墙
挡土墙
入口
景观坐凳