CAD频道
CAD图库
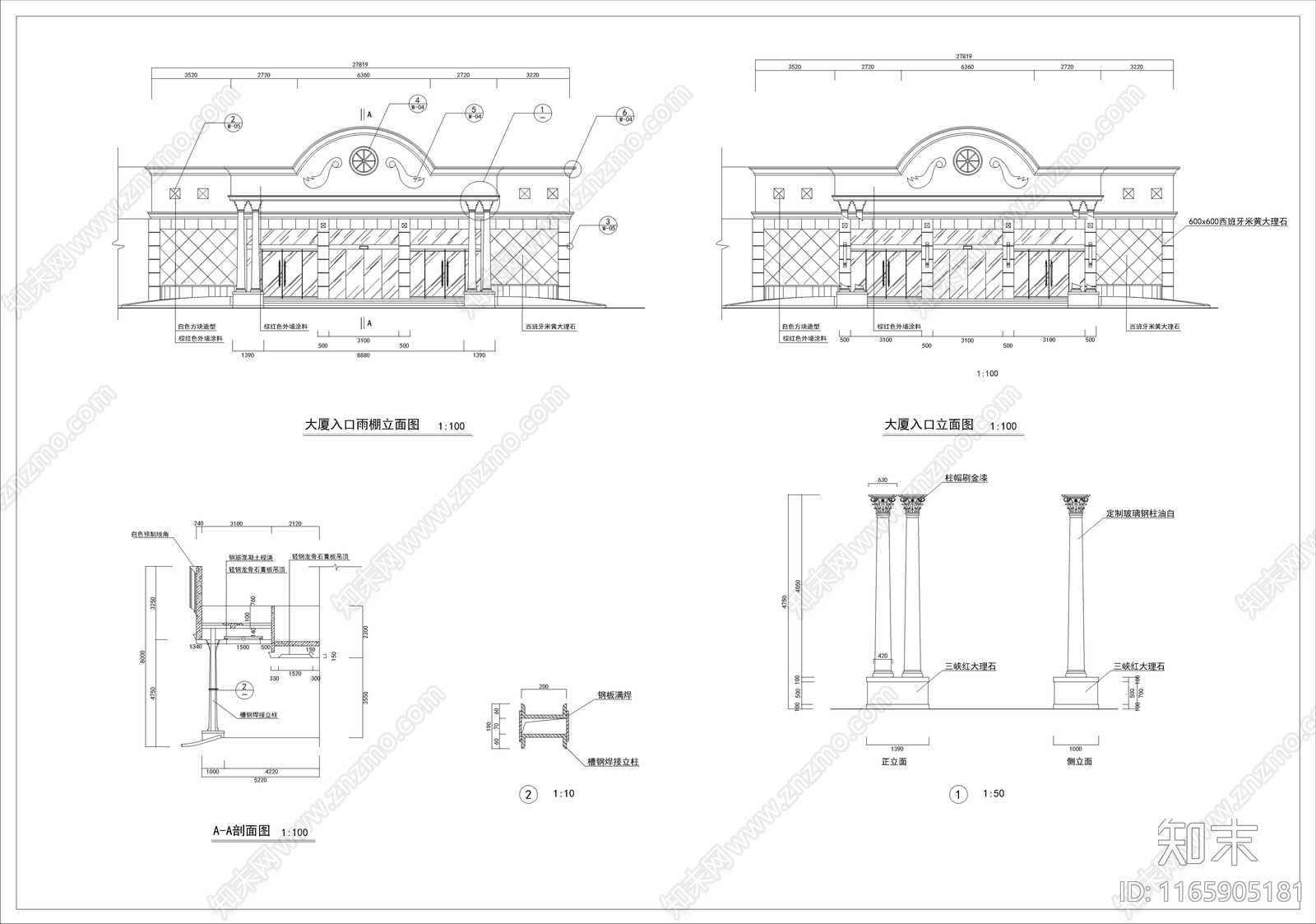
现代酒店 宾馆装饰设计图 施工图
1/
10
Previous
Next
现代酒店CAD下载
ID: 1165905181
复制
上传作者
天选搬砖
上传时间
2024-07-05
文件大小
4.34M
设计风格:
--
CAD版本:
CAD2014
包含文件:
CAD
授权
独家
立即下载
收藏
分享
举报
相关推荐
综合
酒店
其他酒店
酒店餐厅
酒店大堂
酒店公区
酒店客房
酒店卫生间
酒店套房
酒店宴会厅