CAD频道
CAD图库
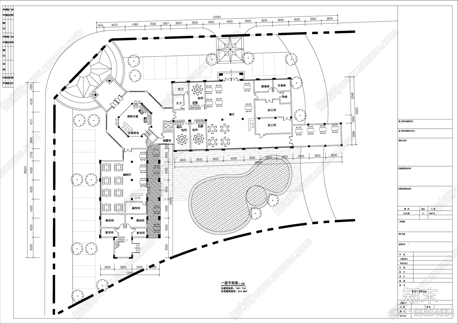
现代酒店建筑 会所 平面图 餐饮建筑 施工图
1/
2
Previous
Next
现代酒店建筑CAD下载
ID: 1165894654
复制
上传作者
爱屋吉屋
上传时间
2024-07-05
文件大小
0.4M
设计风格:
--
CAD版本:
天正CAD3.0
包含文件:
CAD
授权
独家
立即下载
收藏
分享
举报
相关推荐
综合
酒店民宿建筑
酒店建筑
民宿建筑