CAD频道
CAD图库
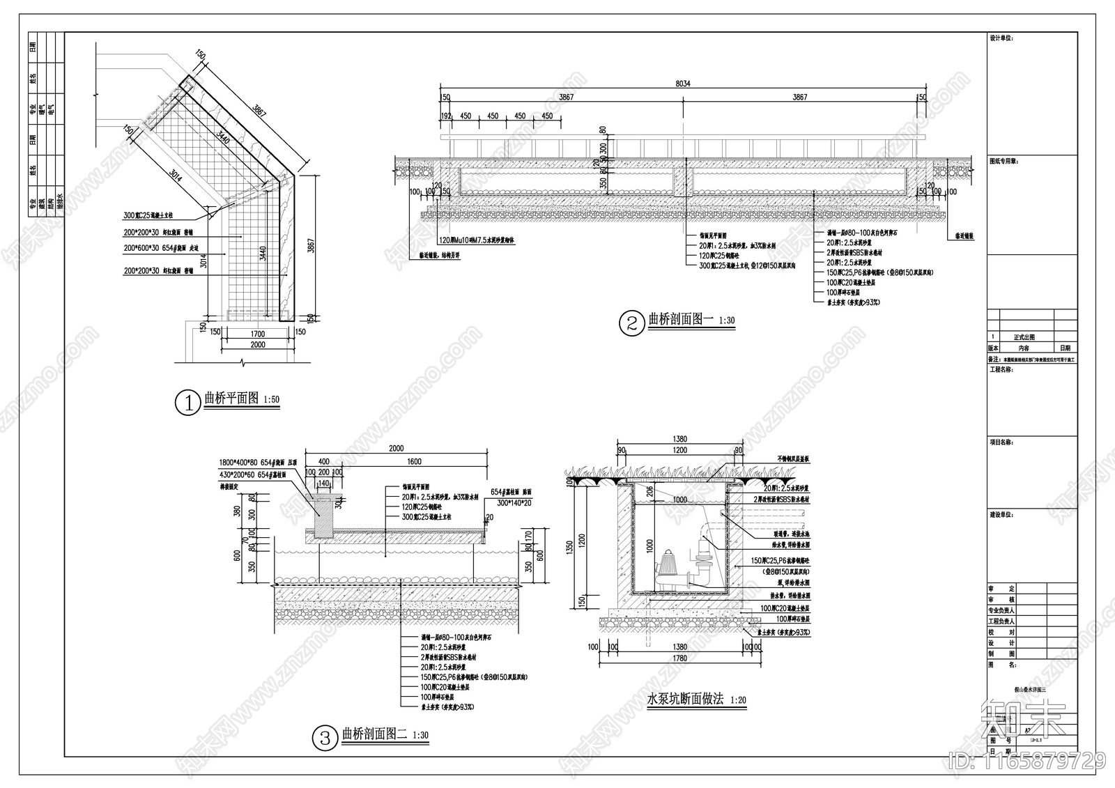
中式小区景观 假山 水景 施工图 居住区景观
1/
3
Previous
Next
中式小区景观CAD下载
ID: 1165879729
复制
上传作者
一夜暴富
上传时间
2024-07-05
文件大小
1.82M
设计风格:
--
CAD版本:
CAD2010
包含文件:
CAD
授权
独家
立即下载
收藏
分享
举报
相关推荐
综合
节点详图
水景
吊顶节点
墙面节点
地面节点
门节点
其他节点详图
建筑工程节点
景观小品
楼梯节点