CAD频道
CAD图库
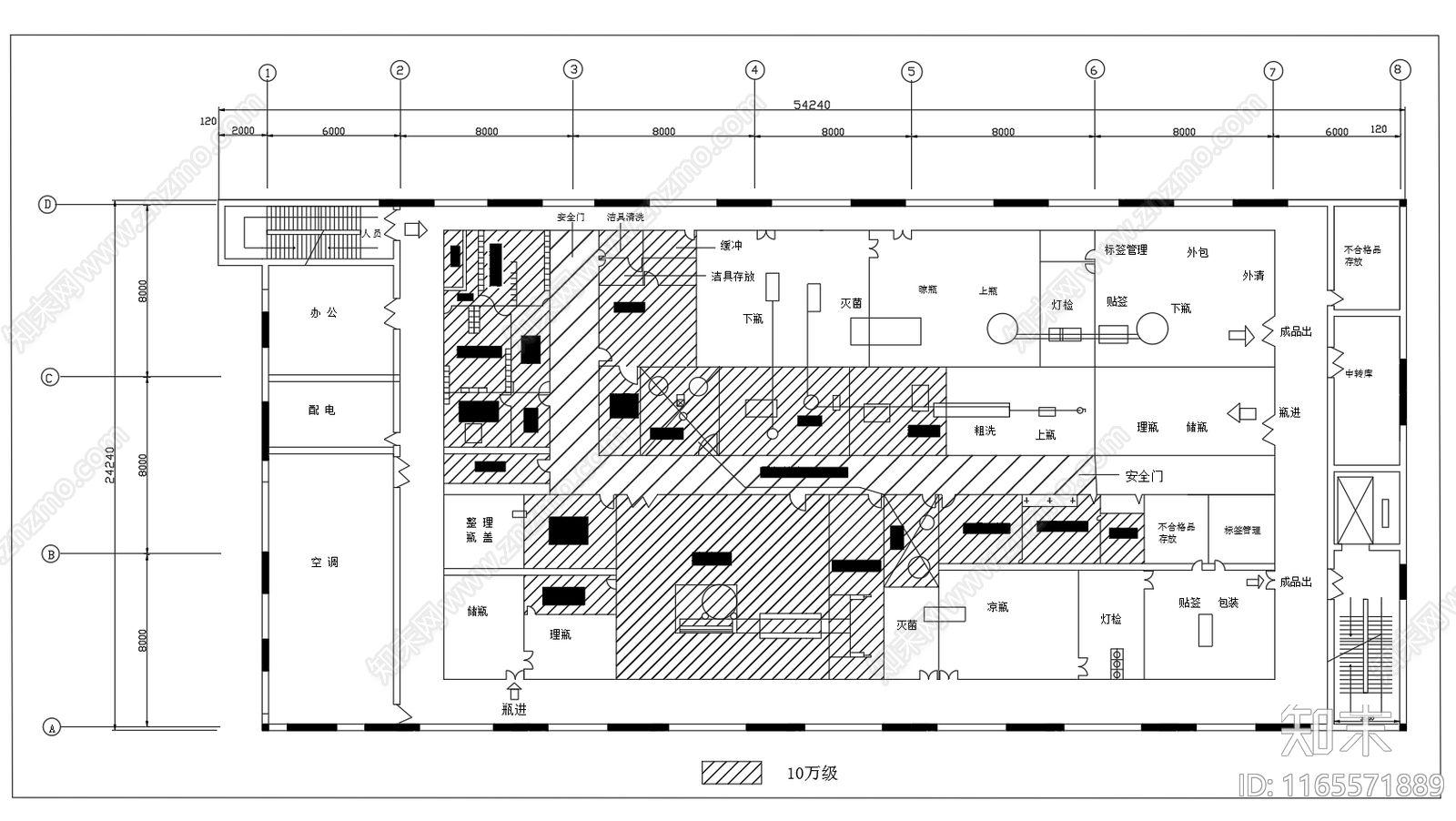
工装平面图 中药口服液车间图 施工图 工装平面图
工装平面图CAD下载
ID: 1165571889
复制
上传作者
小小鱼鱼
上传时间
2024-07-02
文件大小
0.08M
设计风格:
--
CAD版本:
CAD2004
包含文件:
CAD
授权
独家
立即下载
收藏
分享
举报
相关推荐
综合
公共空间
车间
其他公共空间
公共卫生间
宿舍
门头
服务中心
活动中心
会展
母婴室