CAD频道
CAD图库
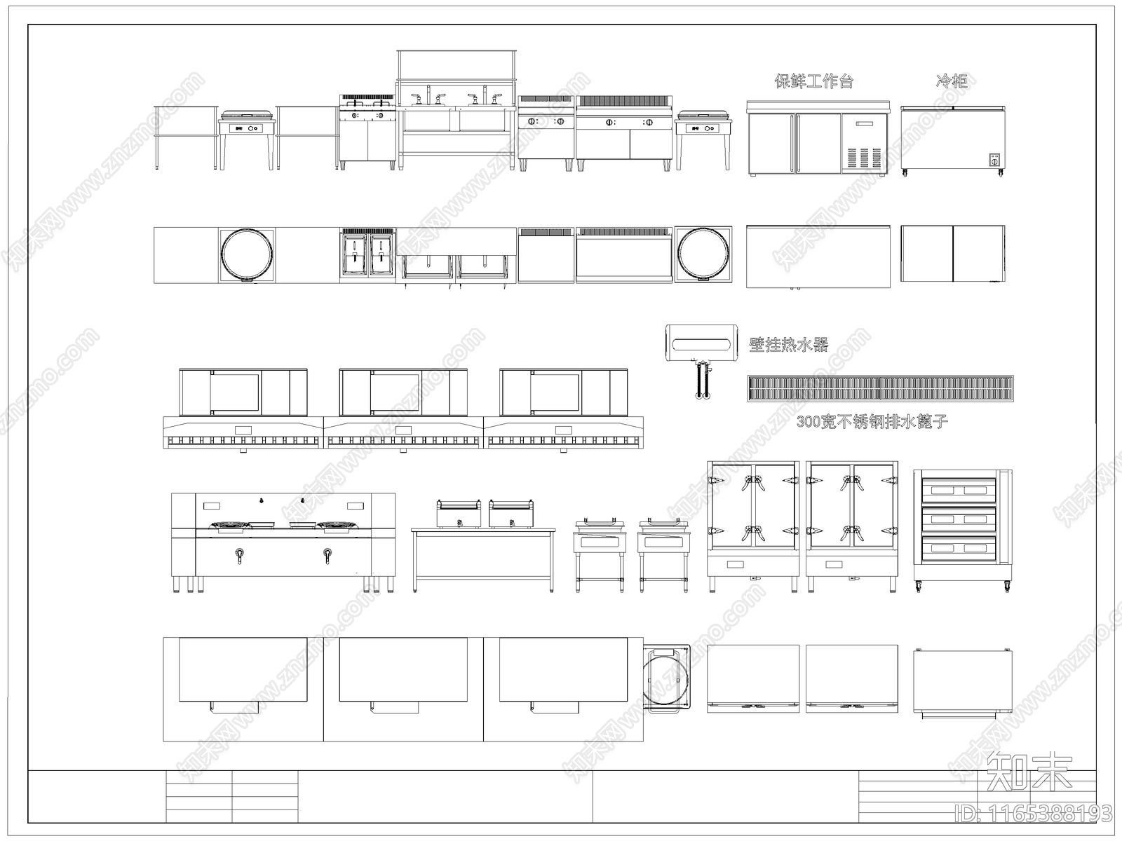
现代厨房设施 后厨 后厨设备 餐饮食堂设备 灶台 施工图
1/
2
Previous
Next
现代厨房设施CAD下载
ID: 1165388193
复制
上传作者
atom
上传时间
2024-07-01
文件大小
3M
设计风格:
--
CAD版本:
CAD2004
包含文件:
CAD
授权
独家
立即下载
收藏
分享
举报
相关推荐
综合
厨房卫浴设施
厨房设施
卫浴设施
综合厨房卫浴设施