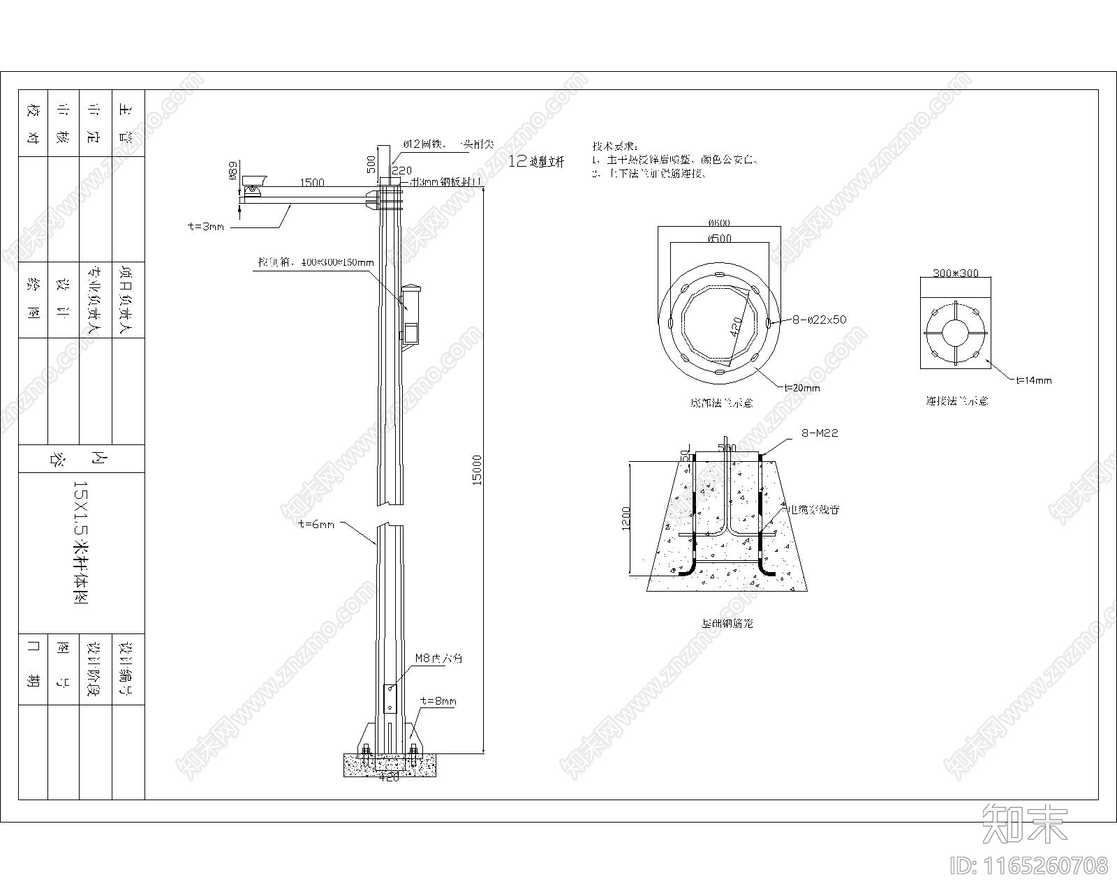
监控施工图下载【ID:1165260708】

监控CAD下载

ID: 1165260708
复制
上传作者
撞大墙啦撞大墙啦

上传时间2024-06-30

文件大小0.05M

设计风格:--

CAD版本:CAD2004

包含文件:CAD

授权独家

立即下载
收藏
分享
举报
相关推荐
综合
器材设备图库
监控
运动器材
电器
晾衣架
帐篷
娱乐器材
儿童器材
消防器材
乐器