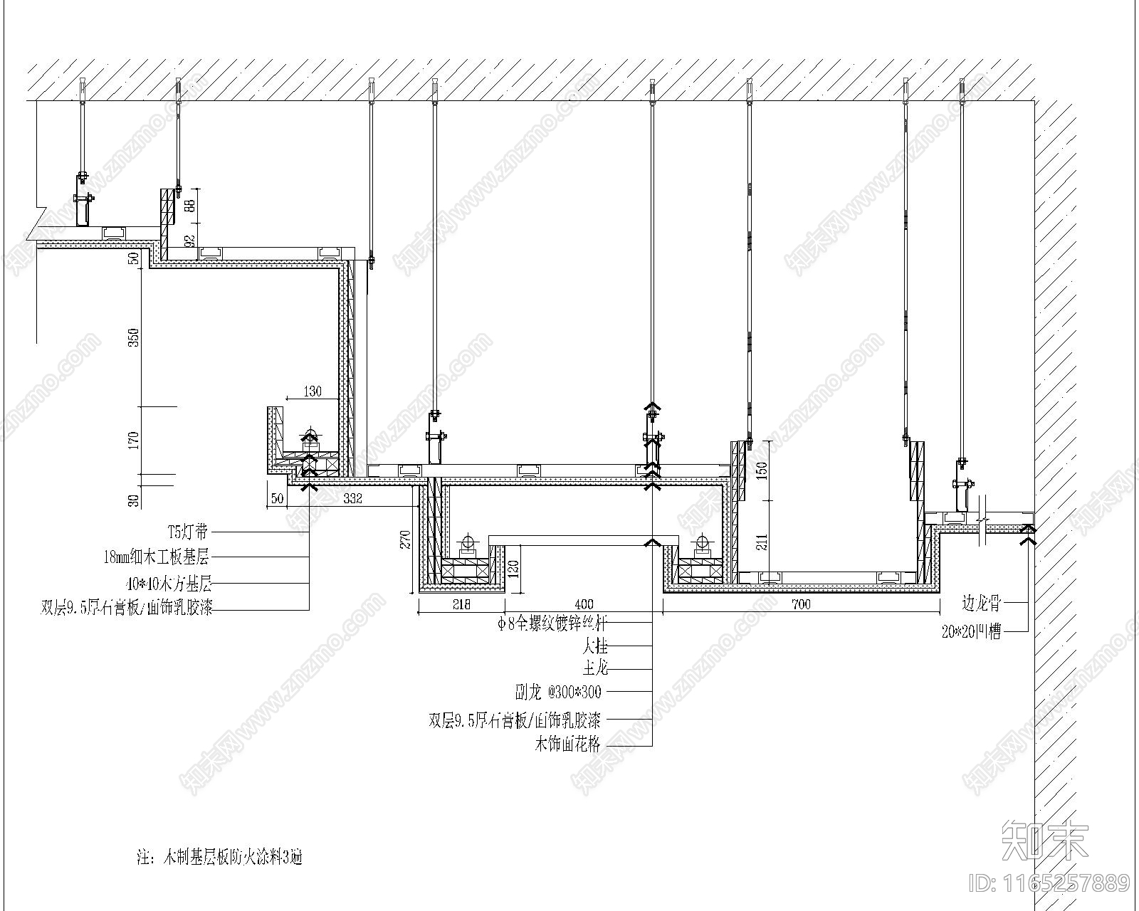
现代新中式其他节点详图施工图下载【ID:1165257889】

现代新中式其他节点详图CAD下载

ID: 1165257889
复制
上传作者
笑傲容颜笑傲容颜

上传时间2024-06-30

文件大小0.06M

设计风格:--

CAD版本:CAD2010

包含文件:CAD

授权独家

立即下载
收藏
分享
举报
相关推荐
综合
节点详图
其他节点详图
吊顶节点
墙面节点
地面节点
门节点
建筑工程节点
景观小品
楼梯节点
水景