CAD频道
CAD图库
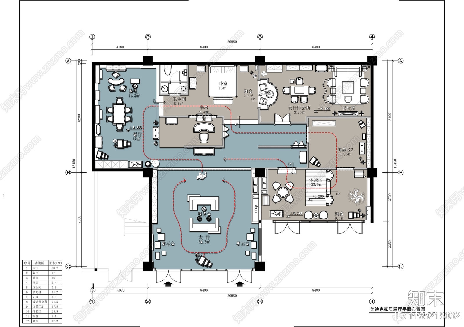
现代美式商场 国际家具展厅 施工图
1/
3
Previous
Next
现代美式商场CAD下载
ID: 1165218032
复制
上传作者
智取怂猫河
上传时间
2024-06-29
文件大小
15.96M
设计风格:
--
CAD版本:
CAD2012
包含文件:
CAD
授权
普通
立即下载
收藏
分享
举报
相关推荐
综合
商业空间
商场
售楼处
其他商业空间
超市
服装店
书店
美甲店
珠宝店
4s店