CAD频道
CAD图库
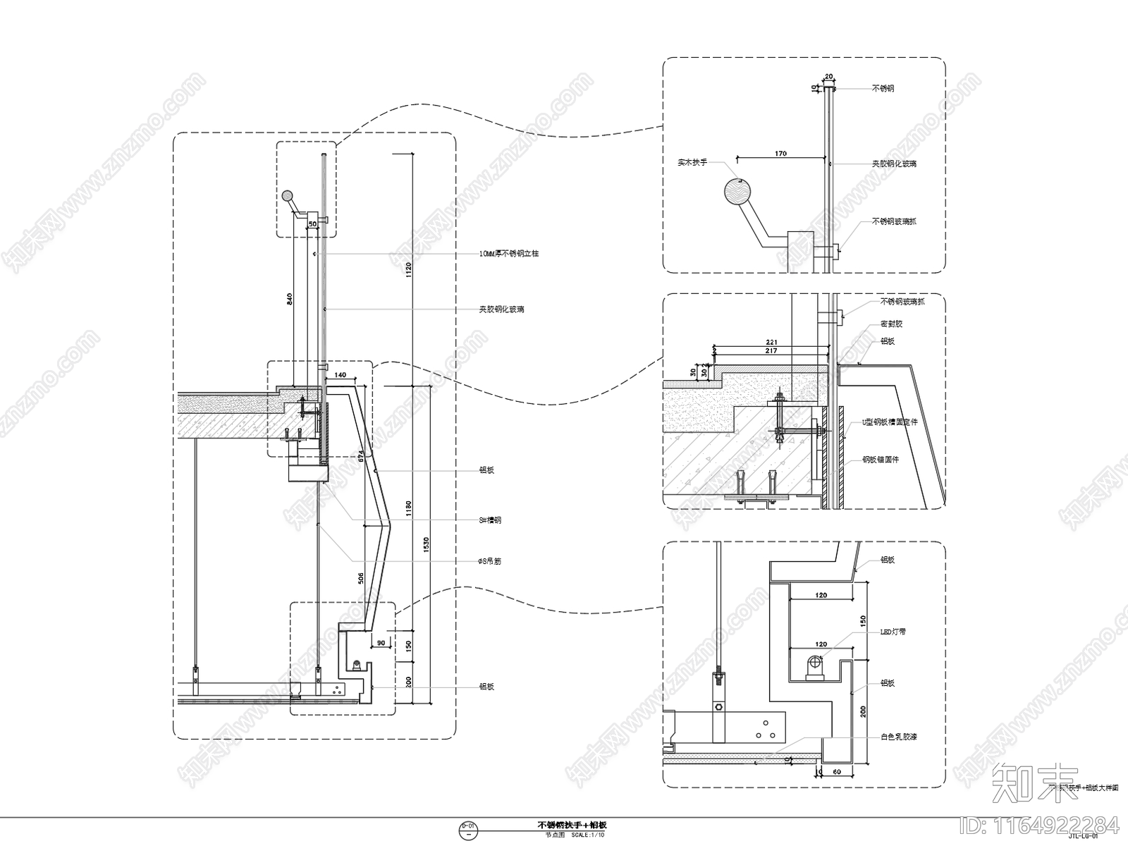
现代其他室内工艺节点 玻璃节点 临空 中空节点 施工图
1/
2
Previous
Next
现代其他室内工艺节点CAD下载
ID: 1164922284
复制
上传作者
HAHA
上传时间
2024-06-26
文件大小
4.88M
设计风格:
--
CAD版本:
CAD2004
包含文件:
CAD
授权
独家
立即下载
收藏
分享
举报
相关推荐
综合
室内工艺节点
其他室内工艺节点