CAD频道
CAD图库
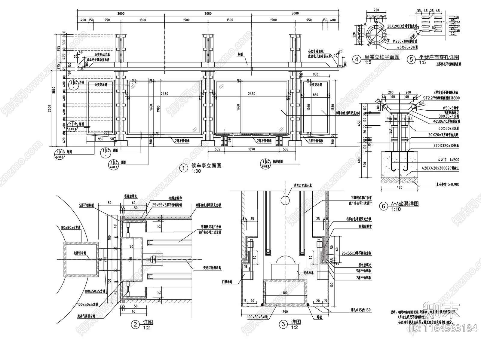
现代广场景观 候车厅 公交站 驿站 施工图
1/
4
Previous
Next
现代广场景观CAD下载
ID: 1164563184
复制
上传作者
EYJO
上传时间
2024-06-23
文件大小
1.75M
设计风格:
--
CAD版本:
CAD2014
包含文件:
CAD
授权
独家
立即下载
收藏
分享
举报
相关推荐
综合
商业景观
广场
商业街景观
其他商业景观
购物中心广场