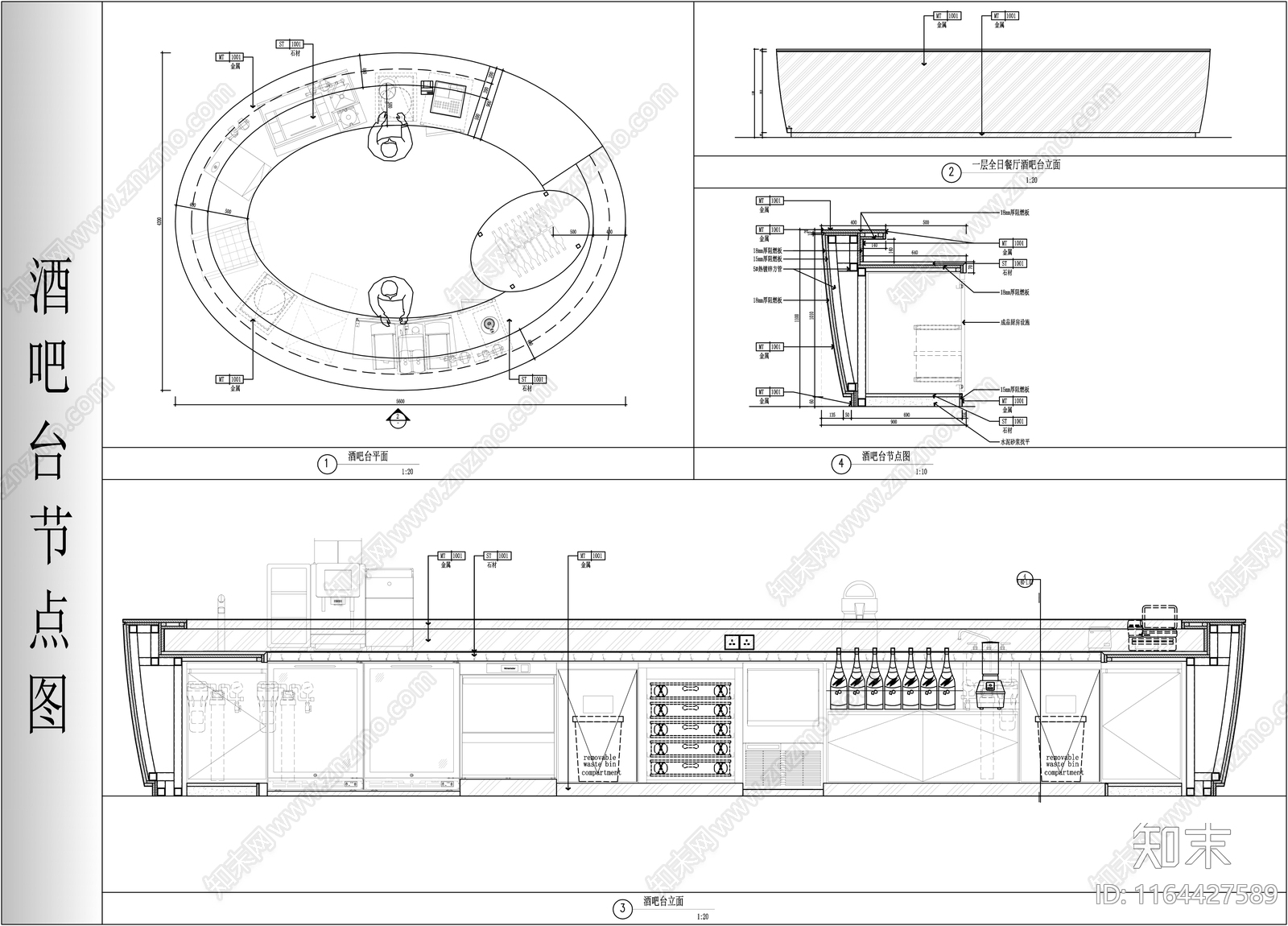
现代家具节点详图施工图下载【ID:1164427589】

现代家具节点详图CAD下载

ID: 1164427589
复制
上传作者
simengsimeng

上传时间2024-06-22

文件大小2.54M

设计风格:--

CAD版本:CAD2004

包含文件:CAD

授权独家

立即下载
收藏
分享
举报
相关推荐
综合
家具节点详图
综合家具节点
吧台节点
壁炉节点
柜体节点
卡座节点
前台节点